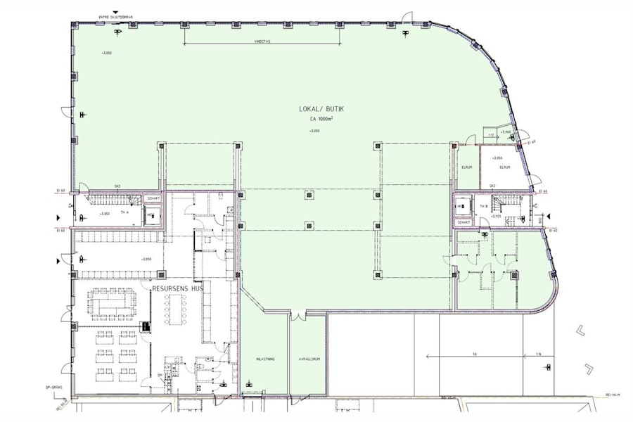
I Oceanhamnens nya mötesplats, så kallade mobilitetshuset, finns möjligheten att etablera en butik om ca 1000kvm. Ytorna passar för livsmedelsbutik eller annat butikskoncept som gynnar området. Till lokalerna finns lastinfart under tak inkl. lastbrygga dimensionerat för alla typer av lastbilar.
Tanken med mobilitetshuset är att skapa en natrulig mötesplats för invånarna i området, och därmed kunna använda det mer än bara till parkering.
Övrig information
Croisette Real Estate Partner har erhållit förmedlingsuppdrag avseende lokalen som beskrivs i detta informationshäfte. Informationen är till största del inhämtad från Fastighetsägaren och eller Hyresgästen. Croisette AB och dess dotterbolag (”Croisette”) ansvarar inte för riktigheten i informationen. All information som är av relevans skall kontrolleras av en eventuell hyresgäst och varken Fastighetsägaren, Hyresgästen eller Croisette kan hållas ansvarig vid felaktigheter i detta informationshäfte.
Omgivning
Företag i närheten: Benchwarmers, Scandic Helsingborg, Zushi, Brasseriet, Forsea med flera.
Parkeringsmöjligheter/garage: Mobilitetshuset kommer bestå till stor del av parkeringar.