Denna välplanerade och genomgående lokal är belägen i en representativ och välskött fastighet med tidstypisk karaktär. Läget på Riddargatan intill Stureplan, Strandvägen och Djurgården kan inte bli bättre.
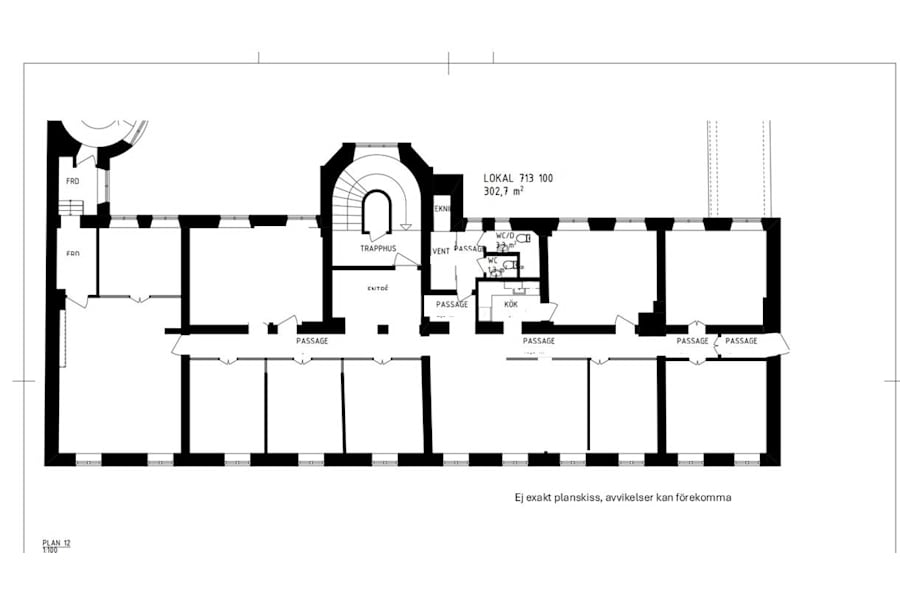
Lokalen består av 10 rum i varierande storlekar, fler rum kan tillskapas om så önskas. Med sin genomtänkta planlösning är lokalen extremt yteffektiv och gör det möjligt att nyttja hela ytan på bästa sätt.
Rummen har fint ljusinsläpp med fönster dels in mot gården samt ut mot Riddargatan.
Två wc varav det större har dusch.
Välutrustat pentry med god maskinell utrustning.
Representativt trapphus med hiss.
Lokalen är genomgående i gott skick. Fastigheten ägs av en privat, seriös och långsiktig fastighetsägare som månar om sina hyresgäster.
Detta är en lokal passar utmärkt för företaget som söker en exklusiv och lugn arbetsmiljö med närhet till citypuls, restauranger och kommunikationer.
Vänligen kontakta Camilla Göransson 072-743 06 22 för mer information och visning.
Omgivning
Omgivning/natur: Läget invid Kungliga Hovstallet och Strandvägen kan inte bli bättre, kan beskrivas som ett av Stockholms mest attraktiva, centrala och historiska lägen. Här kombineras en exklusiv cityatmosfär med en något lugnare, mer charmig karaktär jämfört med de angränsande huvudgatorna.
All tänkbar service finns i den absoluta närheten i form av handel, restauranger, kommunikationer, banker, läkare, hotell m.m.
Närservice: Östermalmstorgs, Östermalmshallen, Stureplan, Birger Jarlsgatan och Nybroplan.