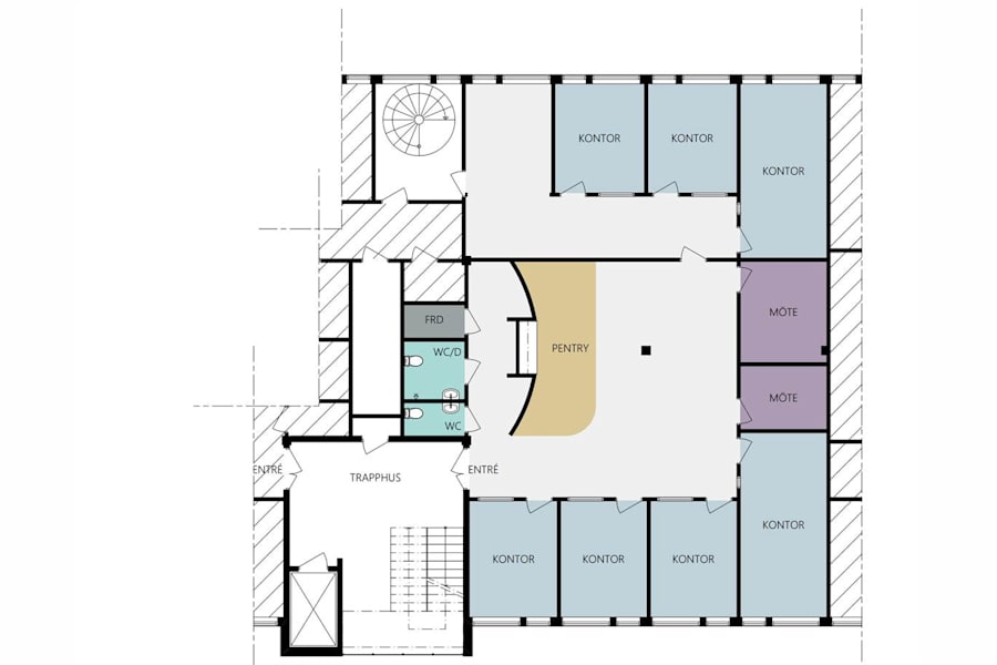
Välkommen till en modern och representativ kontorslokal om 223 kvm, utformad för att skapa en trivsam och funktionell arbetsmiljö. Lokalen präglas av ljusa, luftiga ytor och en väl genomtänkt planlösning som kombinerar öppen planlösning med enskilda kontorsrum och konferensrum.
Här finns fullt utrustat kök/pentry, WC samt omklädningsrum, vilket ger god komfort för personal och besökare. En fräsch och flexibel kontorsmiljö som passar både mindre och växande verksamheter.
Parkering finns att tillgå via tilläggsavtal.
Attraktivt läge i etablerat industri- och logistikområde
Fastigheten är belägen i Hälla, ett populärt lättindustriområde cirka 6 km väster om centrala Västerås, med direkt anslutning till E18 – en av regionens viktigaste transportleder. Den strategiska placeringen i nära anslutning till Västerås flygplats skapar goda logistikmöjligheter för både nationella och internationella transporter.
I området finns en stark mix av verksamheter inom logistik, lager, lättindustri och handel, med etablerade aktörer som Schenker, IB Transport, Cykloteket, Ahlsell, Hilti och Däckkompaniet som grannar.
Service, kommunikationer och bekvämligheter
I närområdet finns ett brett serviceutbud med flera lunchrestauranger, butiker och dagligvaruhandel inom gångavstånd, bland annat i Hälla Shopping och Hälla Syd. Kollektivtrafikförbindelserna till Västerås Centralstation är mycket goda – bussresan tar endast cirka 15 minuter.
Ytor/Planlösning
Se bland bilder/PDF.
Ekonomi
Kontraktlängd: Förhandlingsbart
Kontrakttyp: Förstahandskontrakt
Tillträde: Enligt överenskommelse
Utförande
Fastighetsbeteckning: Ringborren 15
Byggår: 1961
Renoveringsår: 2015
Våningsplan: 2 av 2
Omgivning
Omgivning/natur: Området är ett bra lättindustriområde med inslag av handel.
Företag i närheten: Sharp, Cykloteket, IB transport, HSB
Parkeringsmöjligheter/garage: Bra parkeringsmöjligheter finns