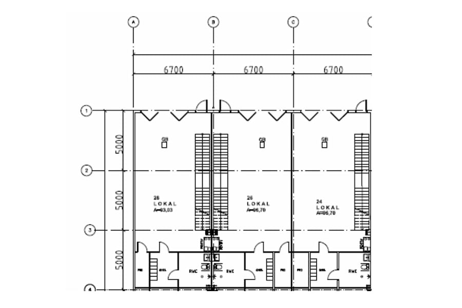
Lokalerna ligger bredvid varandra och kan öppnas upp till en om behov finns. Annars så är dom 200 m2 vardera med 100 m2 lager och 100 m2 övervåning.
5 m takhöjd över hela markplanet.
BESKRIVNING
Lokalen är utmärkt för lätt industri, verkstad eller lager har en yta om ca 200 m2 fördelat lika på två plan. Lokalen är utrustad med pentry samt helkaklat badrum med dusch på övre plan. Utezon om ca 50 m2.
Fastigheten:
Byggnaden har en mörkgrå fasad med svarta manuella vikportar och gångdörrar
Vikportar: 4,5 x 4 m med 4 rader fönster, samt gångdörr bredvid. (1,0×2,1m)
Grund: Isolerad platta på mark (lastkapacitet 1 500 kg/m2) med golvvärme, (Borrsäkert djup 10 cm)
Stomme: Stål
Bjälklag: Balk med undertak Vp18/04
Ventilation: Varje lokal har ett eget FTX-system
Uppvärmning: Golvvärme kopplad till fjärrvärme
Fasad: Plåt, Sandwich
Takbeklädnad: Papp, 2 lagers ytpapp
Utvändiga plåtarbeten: Lackad plåt
Fönster: Aluminium 3.glas
Säkerhet: 2st tidsstyrda motoriserade grindar (7m) svart säkerhetsstaket.
Utomhusbelysning: rörelseaktiverad utanför varje port.
Lokalernas entreplan 100 m2:
Takhöjd ca 5m
Takbeklädnad vitlackad plåt
Golvbeklädnad betong
Belysning lysrör
Trappa till övre plan stål vitmålad
Lokalernas övre plan 100 m2:
Takhöjd ca 3,2m på lägsta del.
Takbeklädnad lackad plåt
Golvbeklädnad Laminatgolv på spånskiva, tål 250kg/m2
Väggbeklädnad vitlackad plåt
Belysning lysrör
Dusch/WC/Pentry
Tillträde så snart som möjligt eller efter önskemål.
Jordbo företagspark är ett populärt område som ligger ca 30 minuter söder om centrala Stockholm och har ett strategiskt läge diktan Södertörnsleden och Nynäsvägen.
Välkomna på visning!
BOKA VISNING/KONTAKT
Vänligen respektera säljarens / hyresvärdens önskemål om bokad visning.
För mer information eller visning av objektet, hör av er till Locus Advice genom kontaktformuläret eller ring Joanna Eriksson på tel 08-558 094 43.
Växeln är öppen helgfria vardagar mellan 08.30-17.00
Locus Advice tel 08-558 094 40
LOCUS ADVICE
Locus Advice är ett fastighetskonsultbolag med fokus på kommersiella fastigheter och lokaler.
Vi arbetar med
Genom etablerade samarbeten med både stora och små fastighetsägare har vi tillgång till ett stort utbud av lokaler utöver vad vi kan marknadsföra i vår egen regi. Via dessa samarbeten kan vi med stor sannolikhet hjälpa er hitta den lokal ni söker efter.