Fastigheten ligger 1 minut från Södra Station och det finns parkering i fastigheten. Kontoret har omklädningsrum för både damer och herrar. Det finns tre ingångar till lokalen vilket ger bra möjlighet skapa en extern och intern avdelning. Kontoret har en bra mix av öppen planlösning och mötesrum.
Tveka inte kontakta för frågor eller visning!
Omgivning
Siktet 6 är strategiskt belägen i en dynamisk och växande stadsdel med närhet till både city och natursköna områden. Här bor och verkar ett brett spektrum av företag och bostäder, vilket skapar ett levande och inspirerande område. I omgivningen finns flertalet caféer, restauranger och grönområden, vilket bidrar till en trivsam arbetsmiljö. Fastigheten har nära till flera grönområden bla Tantolunden som ger möjlighet till avkoppling och rekreation.
Service: Förutom en fantastisk arbetsmiljö erbjuder Siktet 6 en mängd praktiska och bekväma tjänster för att underlätta er arbetsdag. Här finns gott om servicefaciliteter, inklusive närliggande restauranger, caféer och butiker. SATS finns i huset. Huset har bra in-och utlastningsmöjligheter och lager finns att hyra.
Kommunikationer: Siktet 6 erbjuder ett av Stockholms bästa lägen när det gäller kommunikationer. Fastigheten är lättillgänglig med både kollektivtrafik och bil. Ringvägen går precis intill fastigheten och besöksparkering finns utanför. Tunnelbanestationerna Medborgarplatsen och Zinkensdamm ligger på gångavstånd och pendeltågstation Södra Station ligger en minut bort.
Flera busslinjer trafikerar området och stannar på Rosenlundsgatan.
Parkering: Parkering finns att hyra.
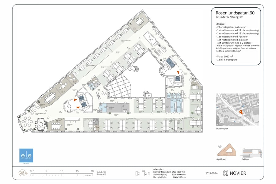
Planlösning: Lokalen rymmer kontorslandskap, flera mötesrum i olika storlekar, lounge, pentry och omklädningsrum. En effektiv planlösning som stödjer både samarbete och fokus.