Trevlig momsfri kontorslokal med allra bästa läge
Lokalen är belägen i ett mycket attraktivt och vältrafikerat område på centrala Kungsholmen, med närhet till såväl Västermalmsgallerian som Kronobergsparken. Här kombineras citypuls med grönska och ett levande kvarter med restauranger, service och handel. Kommunikationerna är utmärkta med Fridhemsplans tunnelbanestation runt hörnet, där både grön och blå linje passerar, samt flera busslinjer som ger smidig access till övriga delar av staden.
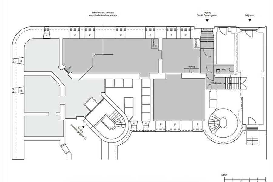
Lokalen omfattar idag cirka 120 kvm och är belägen en halv trappa ner, med egen entré direkt från gatan, idealiskt för verksamheter som studio, showroom, mottagning, kontor eller annan publik verksamhet med behov av synlighet och egen ingång från gatan. Planlösningen är flexibel och disponerad i flera rum med härlig takhöjd och fönster i flera väderstreck som släpper in rikligt med ljus.
Lokalen erbjuder pentry med diskmaskin, två separata wc varav ett med dusch, ansluten fiber samt mekanisk ventilation.
För den som önskar finns möjlighet att utöka lokalen med cirka 45 kvm lagerdel. Hyran är momsfri.
Hyresvärd: brf
Hyra: 30 000 kr / månad, momsfri
Fastighetsskatt: 1 728 kr / månad, momsfri
Yta: 120 kvm
Nextor Group
Anders Ölve
Telefon: 076 340 11 11
Mail: olve@nextor.se
Behöver du hjälp med uthyrning eller överlåtelse? Kontakta mig gärna för en kostnadsfri värdering