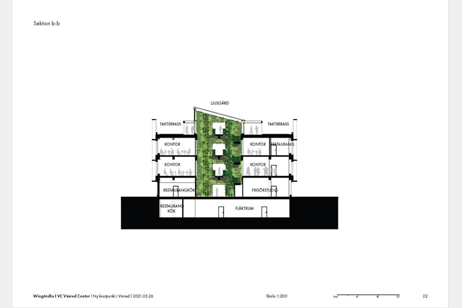
Här byggs just nu en unik kontorsbyggnad med goda servicemöjligheter och en vertikal ljusgård med en 12 meter hög växtvägg som ger ljus och liv in i fastigheten.
Detta är en träbyggnad som kommer erbjuda dig som hyresgäst följande:
Lokalerna kommer stå klara för inflytt till den 1 oktober 2023.
Följande lokaler finns lediga (se även planritning):
Plan 4: 99 kvm: 201 kvm
Plan 3: 148 kvm: 192 kvm: 281 kvm
Det kommer här även finnas Co-worikng ytor.
Välkommen till oss på Croisette för ytterligare information och bokning av visning!
Övrig information
Croisette Real Estate Partner har erhållit förmedlingsuppdrag avseende lokalen som beskrivs i detta informationshäfte. Informationen är till största del inhämtad från Fastighetsägaren och eller Hyresgästen. Croisette AB och dess dotterbolag (”Croisette”) ansvarar inte för riktigheten i informationen. All information som är av relevans skall kontrolleras av en eventuell hyresgäst och varken Fastighetsägaren, Hyresgästen eller Croisette kan hållas ansvarig vid felaktigheter i detta informationshäfte.
Miljöcertifiering: GreenBuilding
Ekonomi
Tillträde: Enligt överenskommelse.
Omgivning
Omgivning/natur: Viared är beläget väster om Borås, och är en företagspark som består av ca 6000 anställda och som fortsatt växer. Här finns företag i alla dess former och nu kommer Viared Centrum utgöra områdets centrum som kommer försörja området med bland annat café, restaurang, gym, frisör, massör, kiropraktor och en obemannad livsmedelsbutik.
Parkeringsmöjligheter/garage: Här finns det mycket goda parkeringsmöjligheter alldeles intill byggnaden. Det kommer även vara möjligt att hyra parkering i husets garage. Det kommer även finnas laddplatser för elbilar.