Unikt tillfälle att hyra in sig i splitter nya lagerlokaler uppe på kistingeområdet.
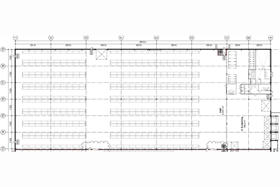
Den största delen av lokalen består av ett höglager om ca 4300 kvm och vid inlastningen finns 500 kvm där takhöjden är något lägre. Entresolplan blir därmed 500 kvm som också kan nyttjas av hyresgästen. Antingen som förvaring eller att man helt enkelt bygger kontor där uppe.
Skulle man vilja, finns det befintliga kontorsytor om ca 40 kvm precis vid Eleikos huvudentré.
Gott om rangeryta och parkering framför lokalen.
Omgivning
Företag i närheten: Eleiko i samma byggnad.
Parkeringsmöjligheter/garage: Gott om parkeringsmöjligheter på tomten