Välkommna till denna kontorslokal som erbjuder ett svårslaget läge i vår vackra och anrika fastighet på Skaraborgsvägen!
I denna charmiga fastighet med anor från 1800-talet finns denna kontorslokal som är vackert belägen intill viskan i ett område med mycket aktivitet och sprudlande företagsklimat. Endast ett stenkast bort från Borås Citykärna. Här finns en lokal med kontorsrum och öppenyta för kreativ arbetsmiljö, pentry, städ och wc. Charmigt med snedtak och takfönster som blickar ut mot takåsarna och staden. Är ni på jakt efter en nya arbetsplats? -Kontakta oss så hjälper vi dig hitta den!
Övrig information
Wiskadals fabrik - Lediga lokaler hittar du längst ned på sidan. På Skaraborgsvägen 21 i Borås har våra hyresgäster lokaler anpassade efter just deras behov. Många av lokalerna har utsikt över Viskan, alla har närheten till centrum. Den härliga exteriören, inspirerad av amerikanska fabriksbyggnadsideal, är från 1900-talet. Den anrika tegelbyggnaden vid Viskan ligger granne med Textile Fashion Center och Högskolan i Borås, strategiskt placerad mellan centrum och Knalleland. Här är det nära till det mesta. Centrum, Centralstationen och Knalleland är bara några hundra meter bort liksom livsmedelsbutiker, restauranger och apotek.
Ekonomi
Kontraktbeskr.: Tillkommer på hyran: Driftkostnader f n 170 kr/kvm och år: Fastighetsskatt f n 66 kr/kvm och år: Moms 25%
Tillträde: Enligt överenskommelse.
Utgångshyra kr/m2/år: 1250
Utförande
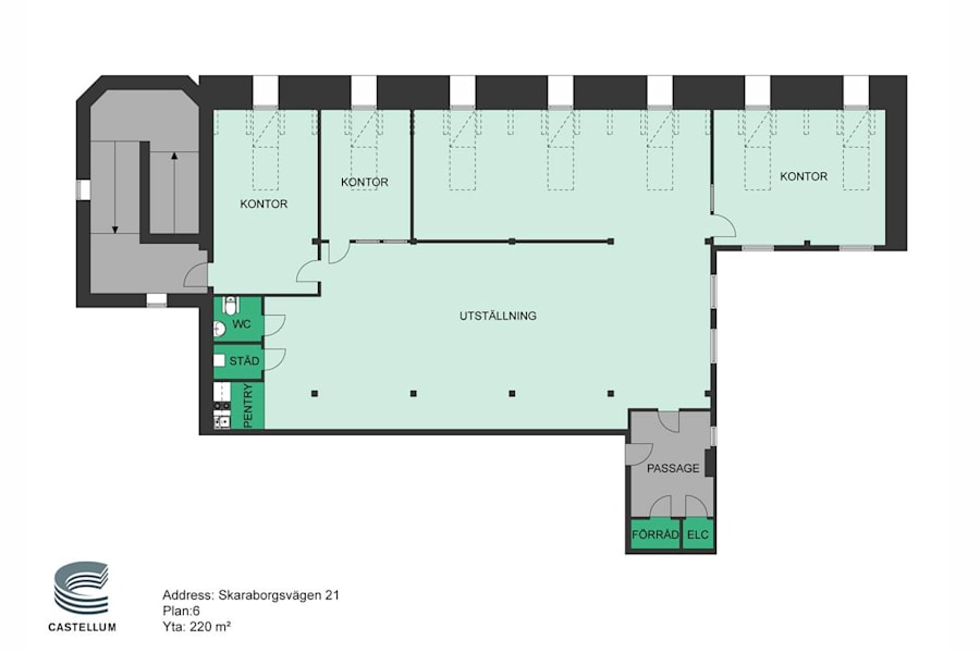
Våningsplan: 6
Omgivning
Omgivning/natur: Området Wiskadal andas företagsklimat och präglas av industrifastigheter som bland annat har omvandlats till kontor. Till fastigheten finns två entréer varav den en har två hissar. Motionsrum finns tillgängligt för alla i huset. För att underlätta hyresgästernas hållbarhetsarbete erbjuder vi även gröna hyresavtal och förnybar el.
Parkeringsmöjligheter/garage: Parkeringsytor finns i området. Sms-parkeringar finns att tillgå. Det finns tolv stycken parkeringar med laddplatser tillhörande fastigheten.