Nu finns chansen att hyra flexibla lokaler med ett perfekt skyltläge på en av områdets mest attraktiva adresser. Lokalerna erbjuder en optimal kombination av kontorsytor och lager/logistik eller verkstad, anpassningsbara efter era behov.
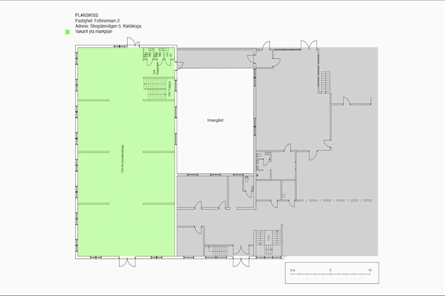
Lager/Verkstad markplan, cirka 300 kvm
Helt öppen planlösning.
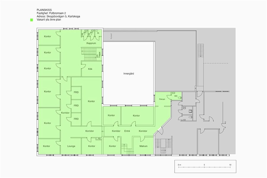
Kontorsdel, övre plan: cirka 410 kvm
I dagsläget består planlösningen av cirka 12 kontor, 2 st Pentryn, WC's och matrum.
Planlösning: För en detaljerad översikt av den nuvarande planlösningen, ladda gärna ner planskiss som PDF längre ner på sidan (DOKUMENT > PLANSKISS).
Anpassningsbara lokaler: Om nuvarande utformning inte helt passar er verksamhet, finns möjlighet att anpassa lokalerna efter era specifika behov och önskemål.
Låter detta intressant? Tveka inte att kontakta oss redan idag för mer information eller för att boka en visning!
Ytor/Planlösning
Se bildspel eller ladda ner PDF för planlösning.
Ekonomi
Tillträde: Enligt överenskommelse
Prisinformation: Enligt överenskommelse
Hyresinformation: Enligt överenskommelse
Utförande
Fastighetsbeteckning: Fotbromsen 2
Våningsplan: 1
Omgivning
Företag i närheten: JULA, Autoexperten, JYSK, Happy Homes, Svensk Byggentreprenad, Vibil, Storemore, Seniorfixaren, Helmia, Renault, Jem & Fix, Meca, Rusta, Meconomen, Shockey, DOLLARSTORE, Burger King, Hedin Bil, Biltema, Coop.
Parkeringsmöjligheter/garage: Gott om parkeringar både för personal och besökare