Nu finns möjlighet att hyra unika kontorslokaler precis vid Stockholms inlopp i en nybyggd fastighet återskapad efter ursprungsvillan men med moderna faciliteter.
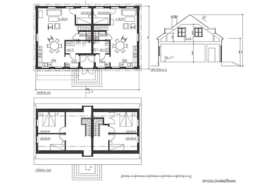
Fastigheten innhåller sex separata rum, 2 WC med dusch, två kök med luftigt utrymme för matplatser och lounge.
Parkering precis utanför och en fantastisk miljö att vistas i.
Området ägs av stiftelsen Anna Visborg Johanssons minne med lokalkontor på plats.
Omgivning
Buss 409 går från slussen till Kungshamn i Skuru, sen en kort promenad ner till kajen.
Bilväg hela vägen fram med parkering utanför.