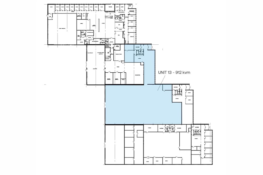
Lättillgänglig lokal om totalt 912 kvm i Sannarp industriområde, med ca 700 kvm lager och 212 kvm kontor. Lokalen lämpar sig väl för verksamheter inom exempelvis logistik, e-handel, teknik, service eller lättare industri.
Lagerdel:
Öppen planlösning
Takhöjd om ca 4,5 meter
Markport för smidig in- och utlastning
Energieffektiv LED-belysning
Kontorsdel:
Indelad planlösning med kontorsrum och mötesrum
Pentry/kök med plats för matgrupp
WC, dusch och omklädningsrum
Möjlighet till uppfräschning och anpassning enligt behov
Fastigheten har fri tillgång från Skyttevägen samt fri parkering precis utanför lokalen, vilket förenklar logistik och skapar god tillgänglighet för både personal och besökare.
Området: Sannarp industriområde ligger 3 kilometer öster om centrala Halmstad på ett strategiskt läge intill E6/E20 och riksväg 25. Området präglas av lättindustri, handel samt lager- och logistikverksamheter. Brett serviceutbud av närservice, butiker, lunchrestauranger och gym finns på gångavstånd. Det finns goda kollektivtrafikförbindelser med buss till centrala Halmstad.
Välkommen att kontakta oss för mer information eller för att boka en visning!
Ytor/Planlösning
Se planritning bland bilder/PDF.
Övrig information
Byggnaden har miljöcertifiering BREEAM In-Use.
Miljöcertifiering: BREEAM
Ekonomi
Kontraktlängd: Förhandlingsbart
Kontrakttyp: Förstahandskontrakt
Tillträde: Enligt överenskommelse.
Utförande
Fastighetsbeteckning: Kartongen 3
Byggår: 1990
Våningsplan: 1 av 2
Takhöjd: 4,5 m
Omgivning
Företag i närheten: Ahlsell, Optimera, PostNord, Mio och Rejmes Personvagnar AB
Parkeringsmöjligheter/garage: Fri parkering
Skyltläge: Bra exponering av skyltläge mot Skyttevägen