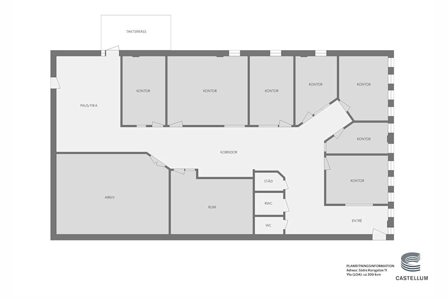
Välkommen till denna kontorslokal med välplanderad planlösning. Det är mycket ljusinsläpp och tillgång till en egen terrass! Genomgående ljus, bra rymd samt parkettgolv i alla utrymmen.
Här arbetar du med sju kontorsrum, pausrum med pentry, konferensrum, stort förråd samt två wc med städ. Den härliga terrassen vetter mot sydost och bjuder på sol under hela arbetsdagen. Ta med dig morgonkaffet eller lunchen ut på terrassen och njut! Få dina medarbetare att trivas och känna sig välkomna till sin nya arbetsplats!
Förhyrningen görs på korttidskontrakt och i befintligt skick.
Välkommen att kontakta oss för mer info och visning!
Våningsplan: 2
Planlösning: Rumsindelad planlösning med pausrum och en egen terrass!
Omgivning
Omgivning/natur: Området är mycket lättillgängligt, med 10 minuters gångavstånd in till city och allt tänkbart utbud i forma av butiker och service.
Lunchpromenaden kan avnjutas i den gröna Annelundsparken som är 91 400 kvadratmeter stor och har ett stort utbud av växligheter. Här finns även stadens största lekplats och i närområdet finns det mesta man kan önska sig med lunchrestauranger och kommersiell service.
450 meter ifrån lokalen finns ICA Maxi, Apotek mm.
Parkeringsmöjligheter/garage: Parkeringsytor finns i området. Sms-parkeringar finns att tillgå.
Närservice: Hos oss har varje hyresgäst ett eget team!
Med ett starkt lokalt engagemang är vi måna om att leva upp till de förväntningar som ställs på en trygg och långsiktig hyresvärd, varje dag, i stort och smått.
Alla våra fastigheter sköts av vår egen personal och som hyresgäst har du tillgång till ett eget Castellumteam som ser till att du trivs hos oss. Och om dina behov så småningom förändras kan vi, tack vare vår storlek, nästan alltid erbjuda en lösning.
För att göra det enkelt för våra hyresgäster att leva hållbart erbjuder vi bland annat gröna hyresavtal och förnybar el.