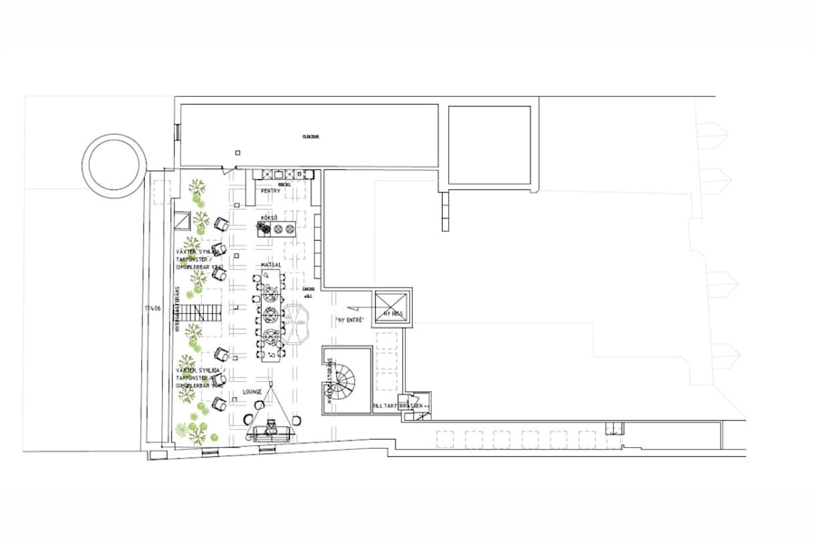
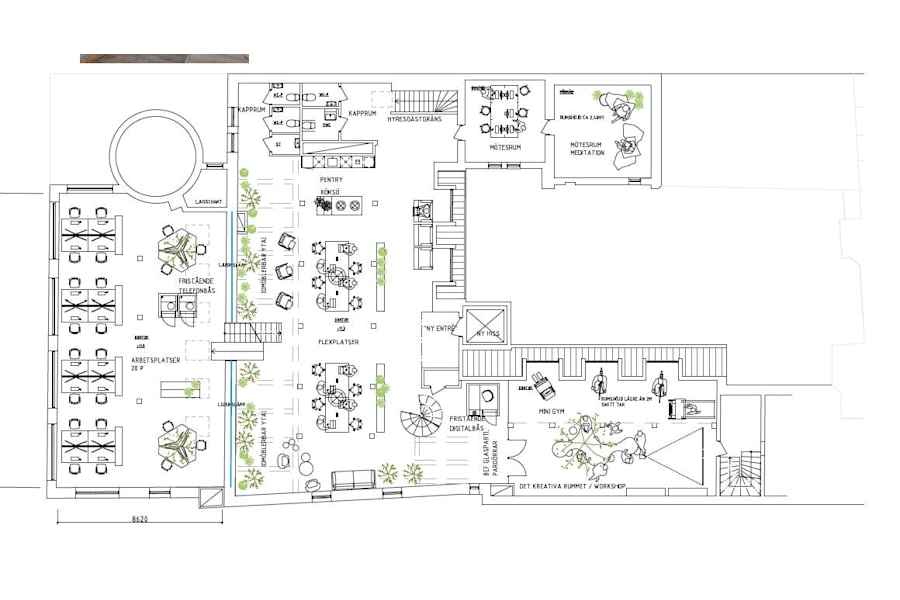
På Södra Storgatan 37 erbjuds nu en härlig kontorslokal om 650 kvm i husets våning 5 & 6. Ytorna är öppna med vackra detaljer då de gamla balkarna är synliga. Kontoret kan du nå via trapphuset eller hissen som har direkt tillgång till kontoret. Som hyresgäst har du egen tillgång till takterrassen som nås via kontoret. Här får du en härlig utsikt över takåsarna.
Fastigheten är belägen centralt i Helsingborg vilket ger er bra närhet till Helsingborgs central med flera kollektiva avgångar i timmen tillsammans med det stora utbudet av service som staden erbjuder.
Övrig information
Croisette Real Estate Partner har erhållit förmedlingsuppdrag avseende lokalen som beskrivs i detta informationshäfte. Informationen är till största del inhämtad från Fastighetsägaren och eller Hyresgästen. Croisette AB och dess dotterbolag (”Croisette”) ansvarar inte för riktigheten i informationen. All information som är av relevans skall kontrolleras av en eventuell hyresgäst och varken Fastighetsägaren, Hyresgästen eller Croisette kan hållas ansvarig vid felaktigheter i detta informationshäfte.
Ekonomi
Tillträde: Enligt överenskommelse
Omgivning
Företag i närheten: Folkuniversitetet Helsingborg, STC, Skandiamäklarna, Fysiokliniken City, Thoren Business school med flera.
Parkeringsmöjligheter/garage: Bra parkeringsmöjligheter i området.