Charmigt och unikt kontor med fantastisk utsikt mitt i Helsingborgs centrum
Ta chansen att flytta in i ett av stadens mest spännande kontor – totalt 1 090 kvm i ett varsamt renoverat spannmålsmagasin från 1800-talet, med en perfekt mix av rustik charm och moderna bekvämligheter.
Här får du ett oslagbart läge mitt i city, bara ett stenkast från Knutpunkten och med närhet till allt du behöver – restauranger, kaféer, butiker, gym, bank och mycket mer.
Kontoret är fördelat på flera plan: cirka 300 kvm på plan 2 samt 650 kvm på plan 5 och 6, där översta våningen dessutom har en egen takterrass med vidsträckt utsikt över Landborgens natur och stadens takåsar.
Lokalen är utrustad med moderna installationer som kök, badrum och fjärrkyla, vilket gör arbetsmiljön både bekväm och funktionell. Det finns möjlighet att hyra hela kontoret eller delar av det – flexibelt efter dina behov.
Garageplats kan hyras separat för smidig parkering.
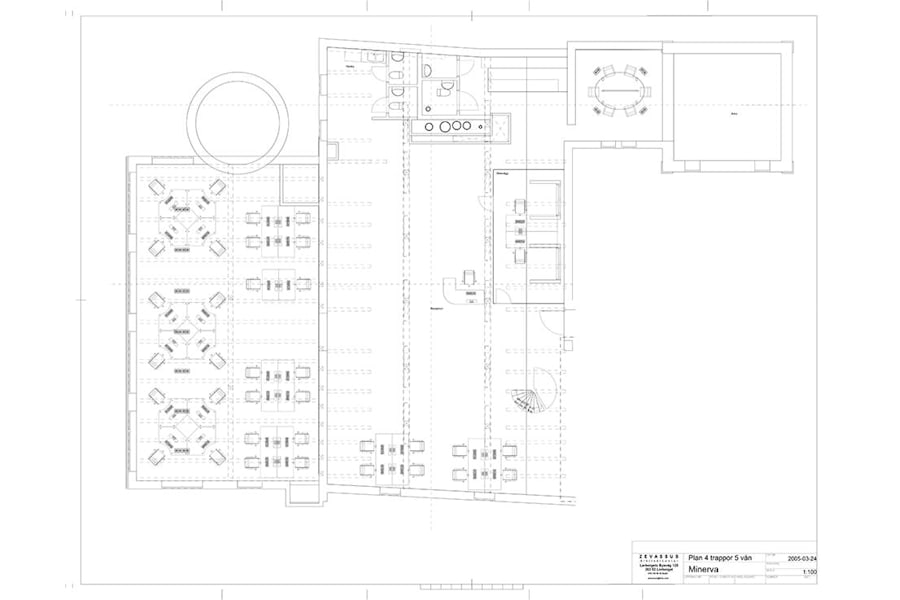
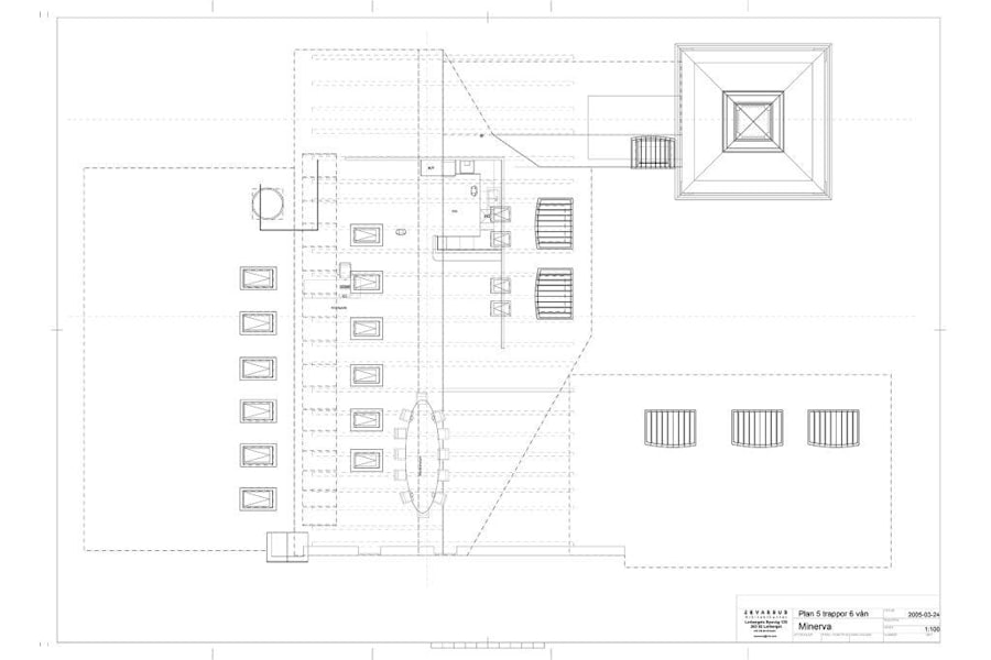
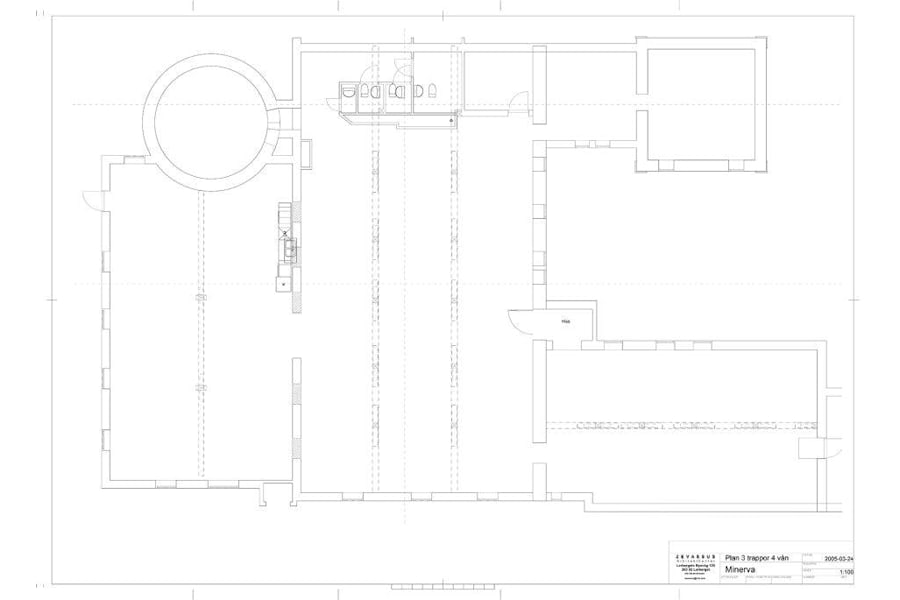
Ytor/Planlösning
Exempel på en av våningarna.
Övrig information
Hansson, Anders, 1842–1912, maltfabrikör, konsul, donator. Hansson uppförde maltfabrik och torkria 1874 vid Södra Storgatan och lät 1895 uppföra fastigheten nr 37 vid samma gata. Redan 1885 hade Hansson uppfört en sommarvilla på backkrönet ovanför maltfabriken. Villan döptes till Annero efter hustrun Anna. Hela fastighetsbeståndet donerades 1909 till staden, varefter Annero till en början blev bostad åt rektorn vid gossläroverket, Magnus af Malmborg, och från 1919 åt spårvägschefen Otto Lange. Den senare lät göra en del tillbyggnader. Större delen av maltfabrikens magasinsbyggnader jämte två torkrior står kvar än i dag, dock med annan verksamhet. Fakta från: https://stadslexikon.helsingborg.se/anders-hansson/.
Ekonomi
Kontraktlängd: Långtidskontrakt
Kontrakttyp: Förstahandskontrakt
Tillträde: Omgående
I hyran ingår: Värme
Hyresinformation: Vill du arbeta från ett kontor med hemkänsla. Välkommen till Södra Storgatan, här finner du flexibla våningsplan.
Utförande
Fastighetsbeteckning: Minerva 32
Byggår: 1895
Renoveringsår: 2000
Omgivning
Omgivning/natur: Lokalen är belägen strax nedanför Landborgen och Slottshagsparken eller Kärnanparken som den kallas i folkmun.