Byggår: 2023
Våningsplan: 5
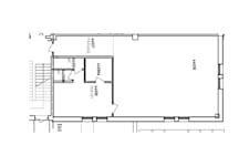
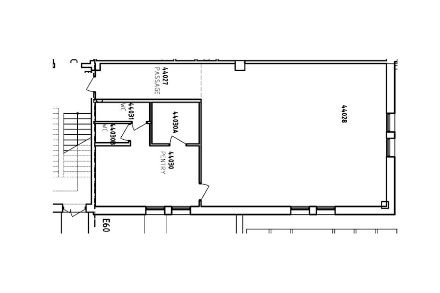
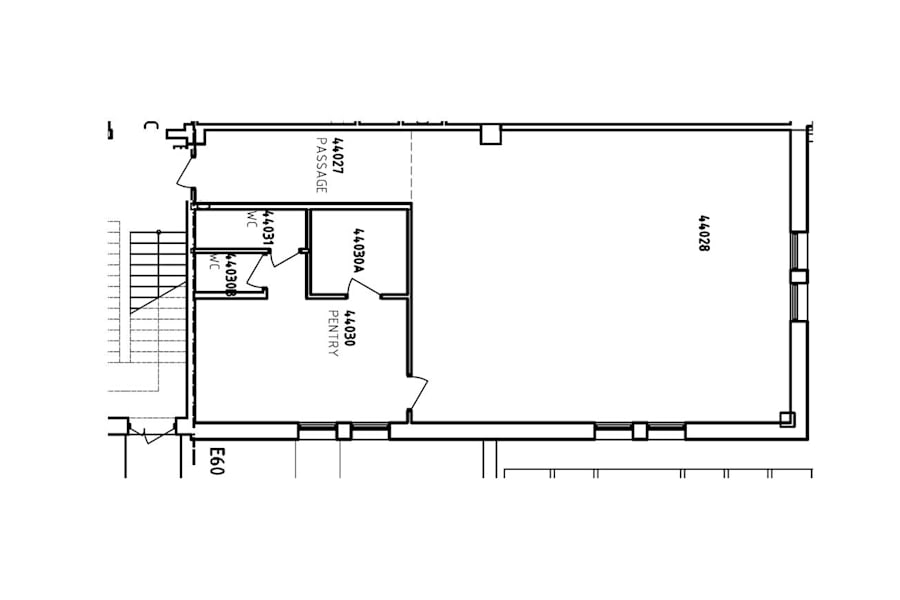
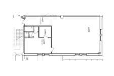
Planlösning: Nu finns möjlighet att hyra en flexibel lokal om ca 108 kvm i attraktiva S:t Per Gallerian mitt i centrala Uppsala.
Lokalen består av ett större, öppet rum som enkelt kan anpassas efter verksamhetens behov, samt ett separat personalrum med pentry och direkt utgång till en trevlig uteplats. Planlösningen ger goda möjligheter att skapa en funktionell och trivsam arbetsmiljö.
Läget i gallerian ger tillgång till all tänkbar service – restauranger, caféer, butiker och kommunikationer precis utanför dörren. Det centrala läget gör det enkelt för både medarbetare och kunder att ta sig hit.
Lokalen passar utmärkt för exempelvis, enklare kontorsverksamhet med lager eller showroom, behandlingsverksamhet, yogastudio eller annan enklare träningsverksamhet, ateljé eller kreativ studio.
Välkommen att höra av dig till Snezana för mer information eller för att boka visning!
Omgivning
Omgivning/natur: S:t Per gallerian ligger mitt i Uppsala city i bästa läge vid den stora gågatan.
Parkeringsmöjligheter/garage: garage i huset
Närservice: S:t Per Gallerian är en citygalleria med butiker av hög modegrad. Här finns såväl svenska kvalitetsmärken som internationella kedjor, Clas Ohlson, Apoteket och en mycket välsorterad ICA-butik. Restaurangutbudet är brett med bland annat Brödernas, Sushi Yama, Landings samt Clarion Hotel Gillet med brasseri och lunch. I gallerian inryms också flera större kontorshyresgäster.