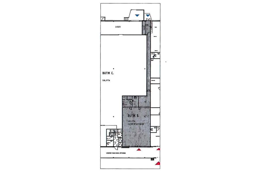
Nu har du chansen att bli en del av Fjellhandeln – ett modernt och växande handelsområde precis vid norska gränsen. Med sina 11 000 kvm butiksyta, starka hyresgäster som Stora Coop, Eurocash och Systembolaget, samt strategiskt läge längs E14, är detta en perfekt plats för dig som vill nå både svenska och norska kunder.
Här erbjuds en ledig lokal i ett attraktivt läge, med tillgång till goda parkeringsmöjligheter, hög kundtrafik och möjligheten att verka i ett dynamiskt gränshandelscentrum där shopping möter fjällupplevelser.
Hemsida: https://fjellhandel.se/.