Nu finns möjligheten att hyra en flexibel och välbelägen lokal i populära Bolandcity. Perfekt för dig som vill etablera en pop-up butik, testa ett nytt koncept eller skapa extra synlighet under den viktiga julhandeln.
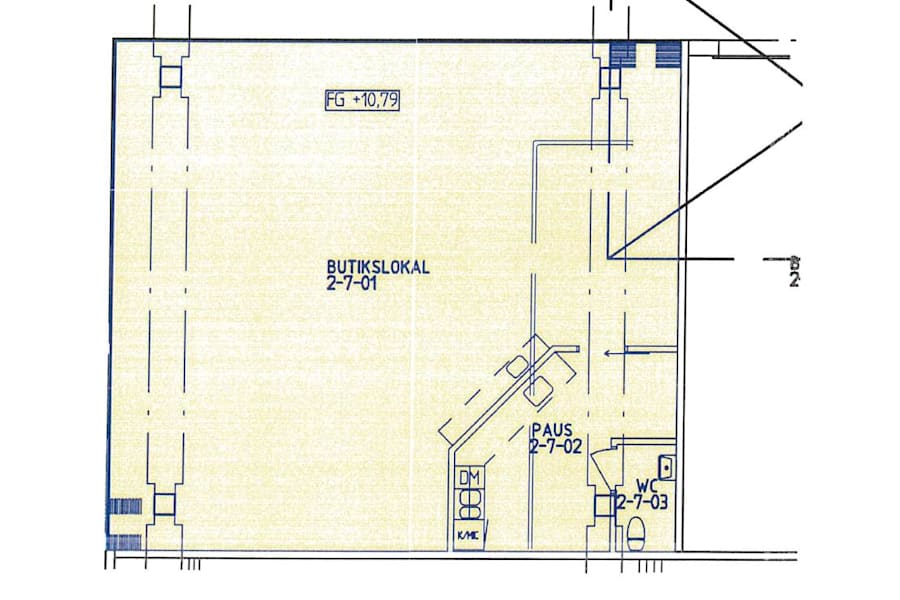
<strong>✔ Storlek:</strong> 110 kvm
<strong>✔ Hyresperiod:</strong> December (korttid) med möjlighet till viss förlängning
<strong>✔ Lägesfördelar:</strong> Hög kundtrafik, bra parkeringsmöjligheter och starka grannar.
Omgivning
Företag i närheten: Systembolaget, City Gross, Eko, Lager 157, Arken Zoo m.fl.