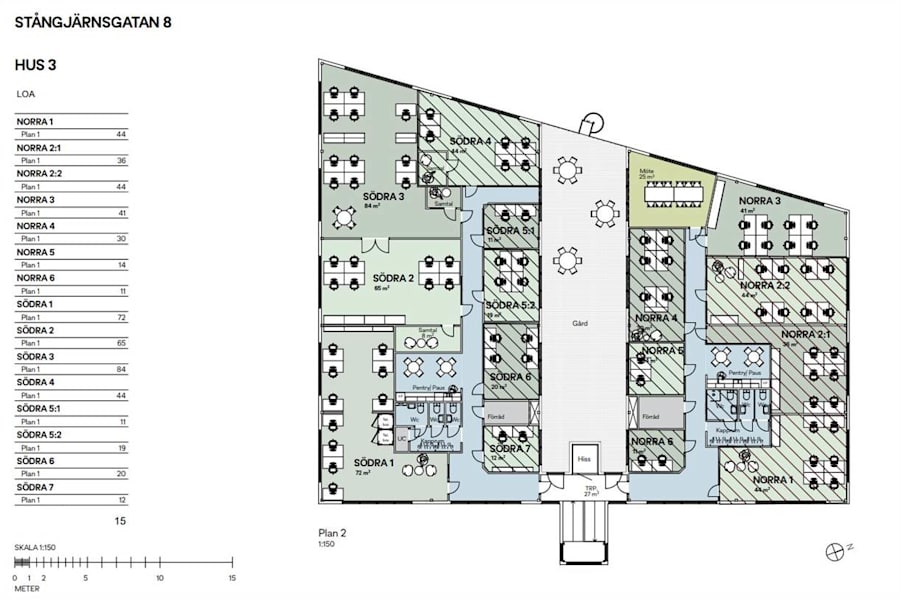
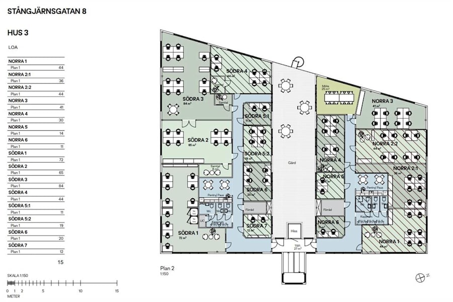
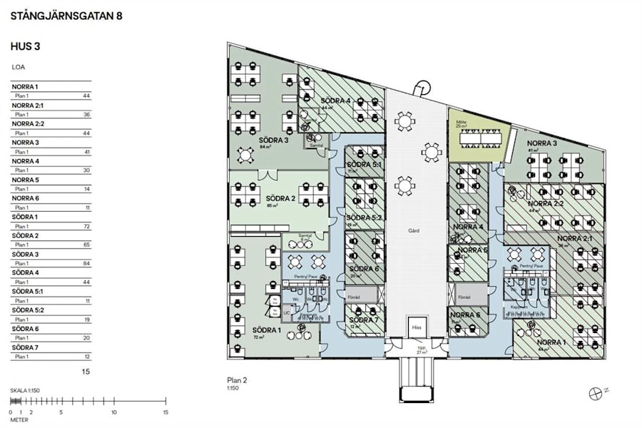
I vårt kontorshotell på Stångjärnsgatan 8 på plan 2 med hiss, finns ett varierat utbud av kontorslokaler från 11 kvm och uppåt, med tillgång till ett gemensamt kök, kaffemaskin och WiFi. I anslutning till kontorshotellet finns gemensam uteplats.
Ytor/Planlösning
I vårt kontorshotell på Stångjärnsgatan 8, plan 2, finns ett varierat utbud av kontorslokaler från 11 kvm och uppåt, med tillgång till ett gemensamt kök, kaffemaskin och WiFi.
Ekonomi
Kontraktlängd: Förhandlingsbart
Kontrakttyp: Förstahandskontrakt
Tillträde: Enligt överenskommelse
Omgivning
Skyltläge: Utmärkt skyltläge mot Stålgatan och Stångjärnsgatan
Vägbeskrivning: Ca 5 minuters bilväg från Uppsala centrum. Flertalet busslinjer trafikerar området och endast 7 min cykelväg från centrum.