Centralt i Lund på Stora Södergatan 49 hittar ni denna fina fastighet med olika ytor som finns att hyra från ca 350 kvm upp till 1300 kvm.
Nedan finns även att hyras enskilt (utan att behöva dela av):
550 kvm - plan 2
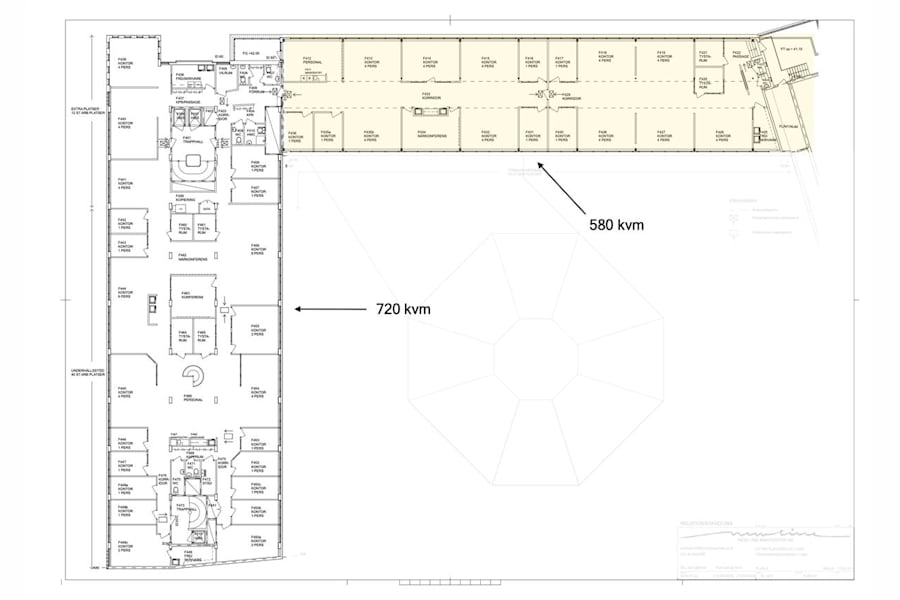
580 kvm - plan 4
720 kvm - plan 4
Lokalerna erbjuder en bra mix av öppna ytor och mindre kontorsrum, och planlösningen kan anpassas helt efter era behov.
Fastigheten har ett utmärkt centralt läge med gångavstånd till Lund C. Här tar du dig enkelt till jobbet med cykel, tåg, buss eller till fots. För den som önskar finns även garageplatser att hyra i fastighetens källarplan.
Som hyresgäst får ni dessutom tillgång till en gemensam matsal på plan 5 – med städning och kaffe inkluderat mot ett mindre tillägg. Perfekt för en smidig och trivsam arbetsvardag.
Fastigheten är utrustad med hiss och varuintag.