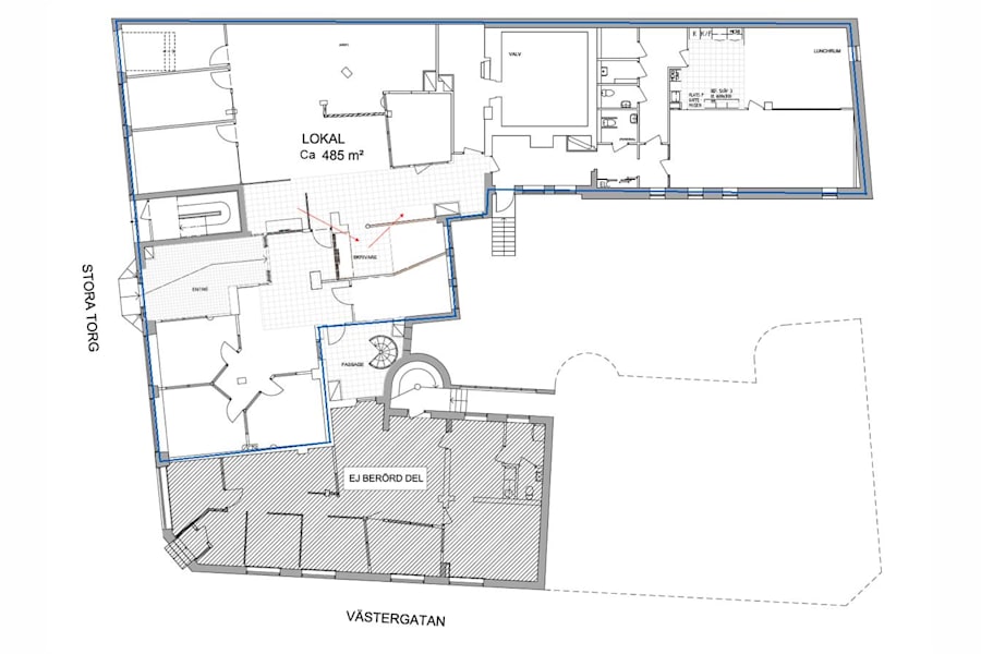
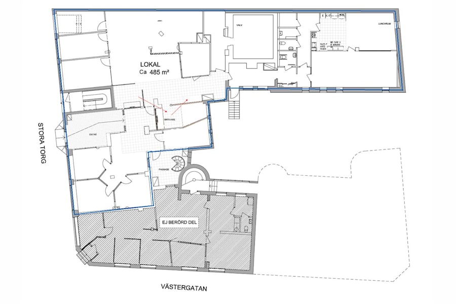
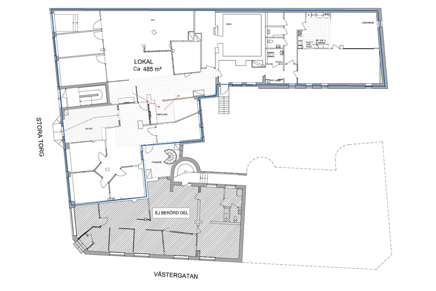
Nu finns möjlighet att hyra ett kontor om totalt 520 kvm med bästa läge vid Stora Torg i centrala Eslöv. Lokalen är belägen i en representativ fastighet med utsikt mot torget och direkt närhet till service, handel och kommunikationer. Ett utmärkt alternativ för företag som söker gott om utrymme i ett centralt och tillgängligt läge.
Lokalen har en flexibel planlösning med både större öppna ytor och enskilda kontorsrum. Här finns plats för arbetsplatser, mötesrum, pausytor och internservice. Dessutom finns tillgång till kök, toaletter och förrådsutrymmen.
En stor, flexibel kontorslokal i hjärtat av Eslöv – idealisk för verksamheter som värdesätter centralt läge och god tillgänglighet. Kontakta oss för mer information eller visning.
Övrig information
Croisette Real Estate Partner har erhållit förmedlingsuppdrag avseende lokalen som beskrivs i detta informationshäfte. Informationen är till största del inhämtad från Fastighetsägaren och eller Hyresgästen. Croisette AB och dess dotterbolag (”Croisette”) ansvarar inte för riktigheten i informationen. All information som är av relevans skall kontrolleras av en eventuell hyresgäst och varken Fastighetsägaren, Hyresgästen eller Croisette kan hållas ansvarig vid felaktigheter i detta informationshäfte.
Omgivning
Omgivning/natur: Eslövs station ligger inom fem minuters promenad och erbjuder täta avgångar med Pågatåg och regionbussar mot bland annat Lund, Malmö och Kristianstad. I området finns även flera parkeringsmöjligheter för både personal och besökare.
Företag i närheten: Handelsbanken Eslöv, Life, Svensk Fastighetsförmedling, Studio Aktiv 24, Dressman, Espresso House med flera.