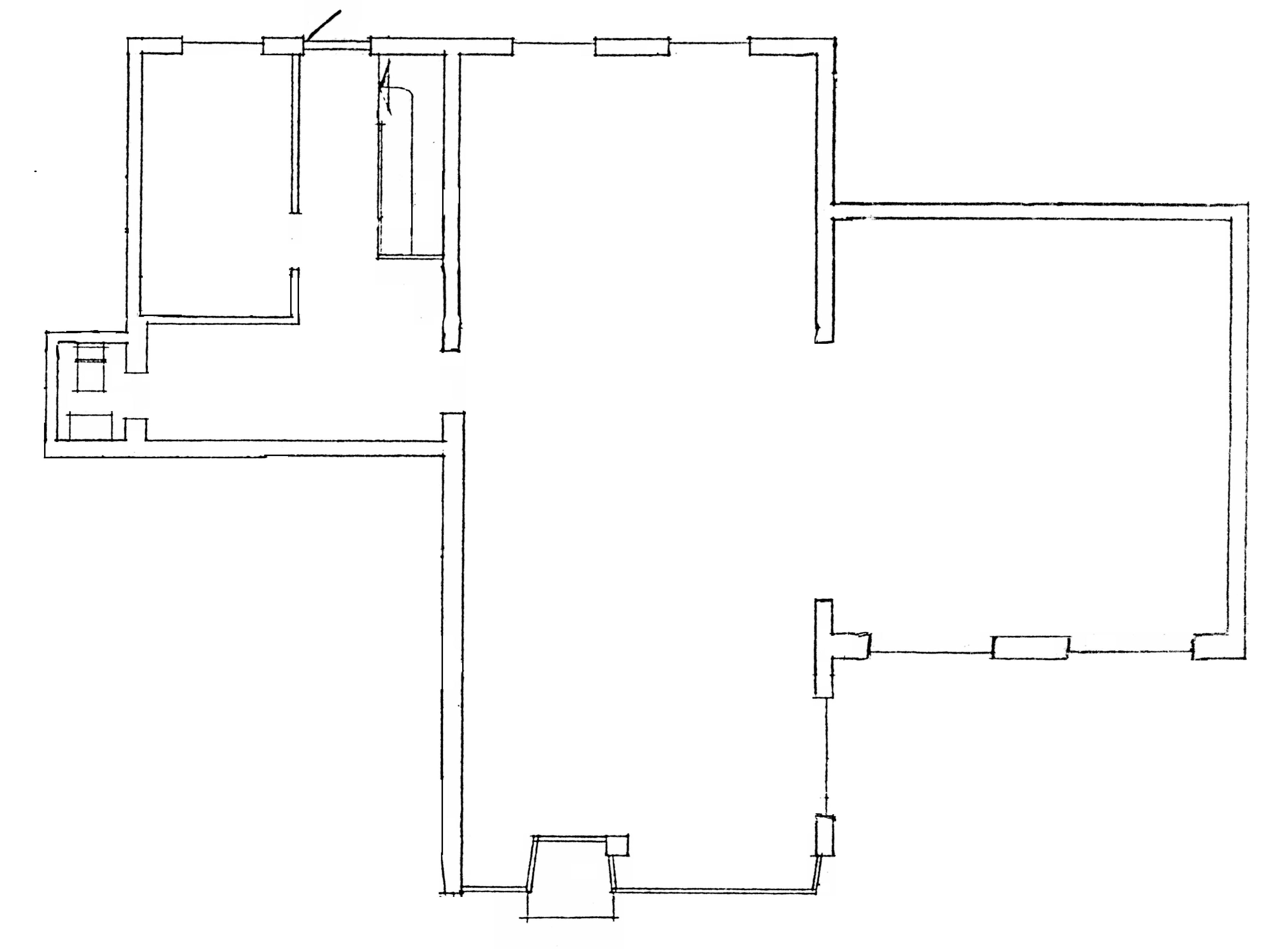
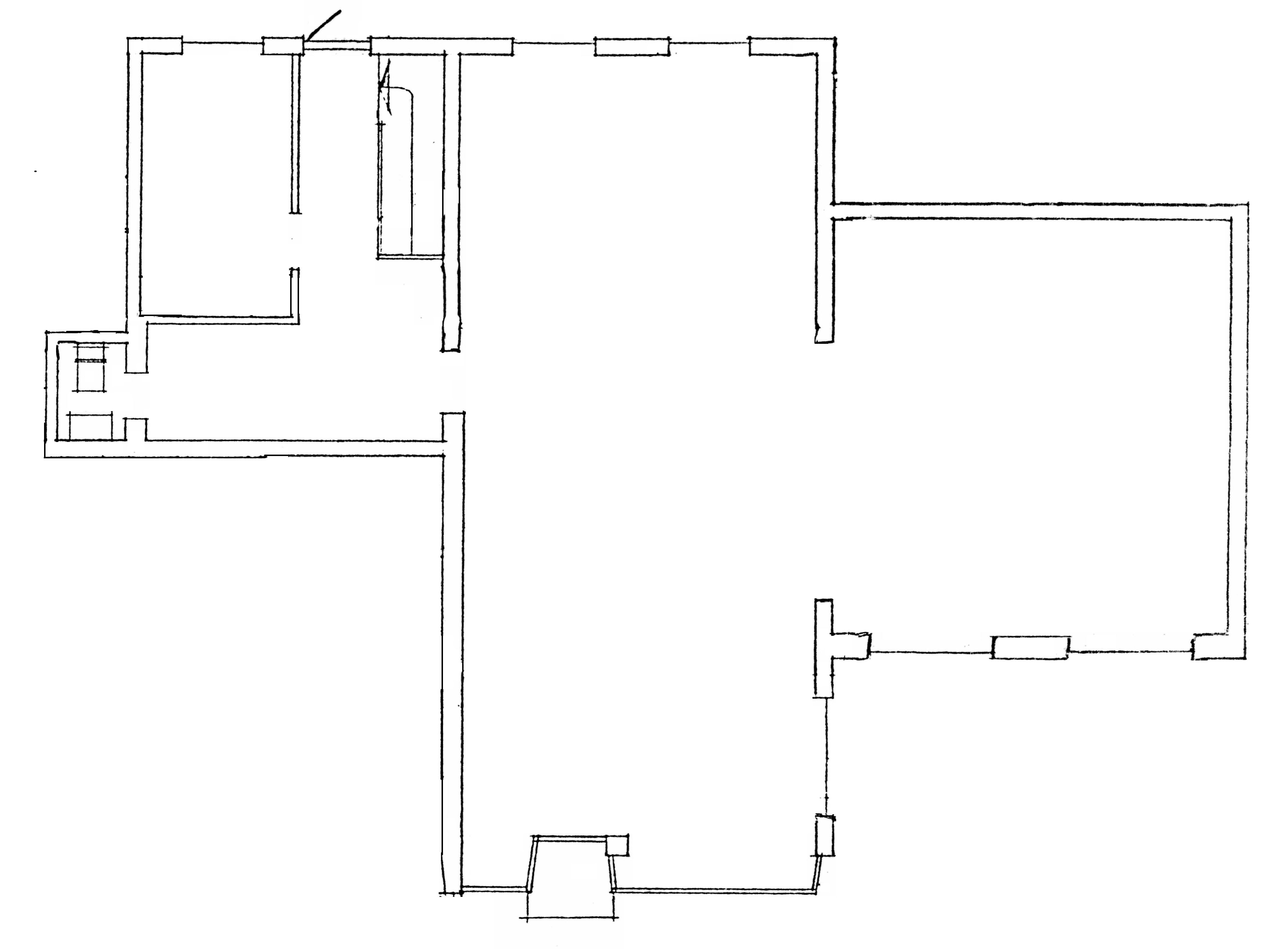
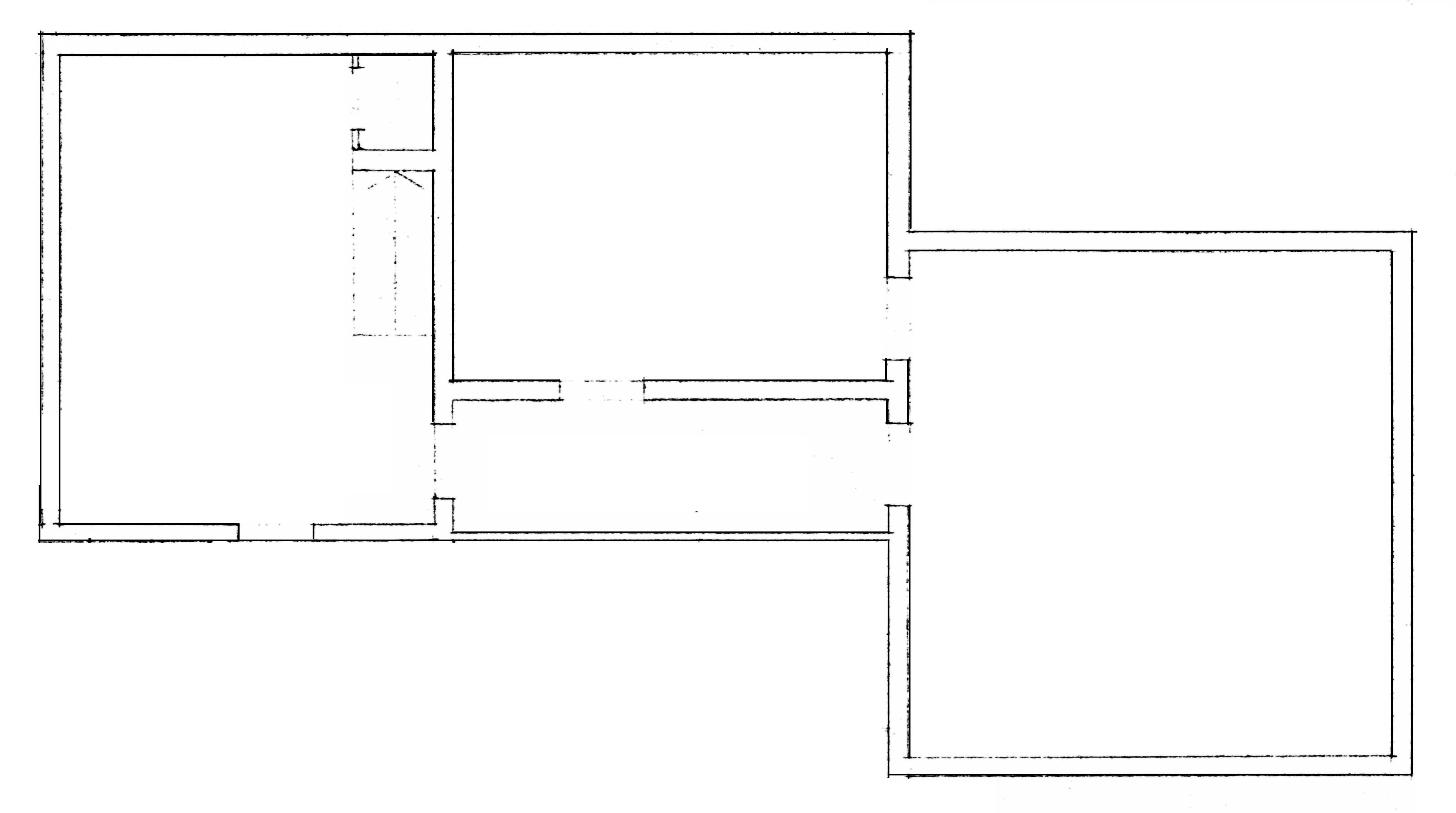
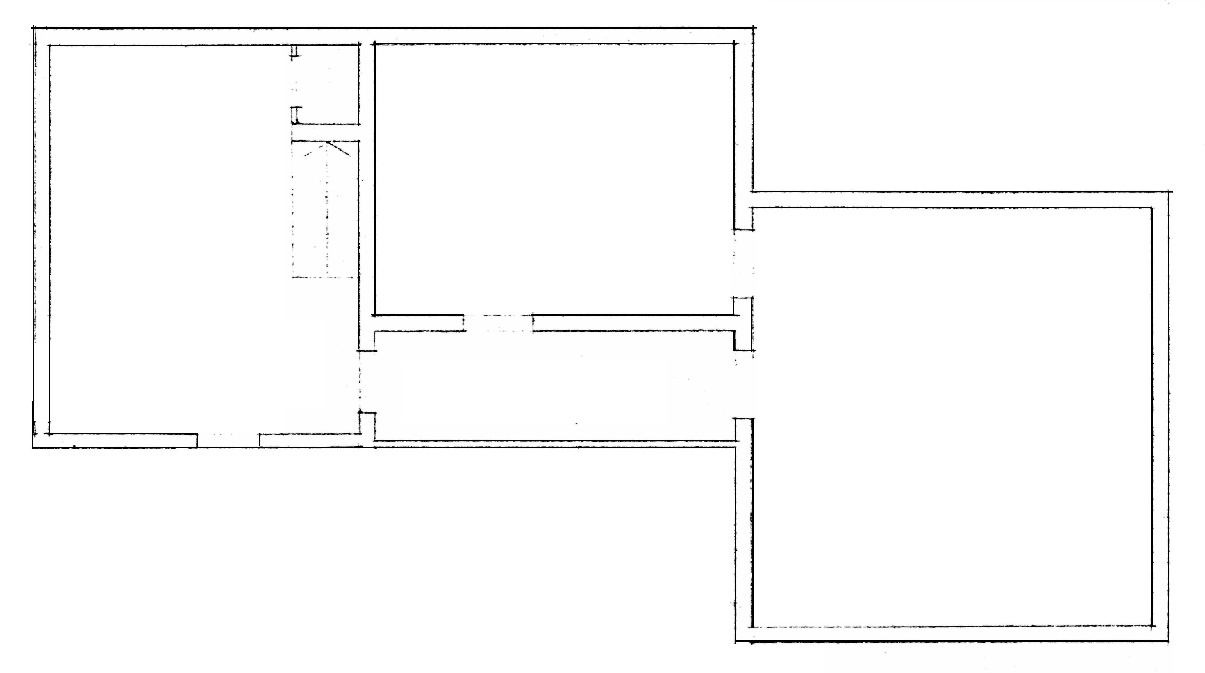
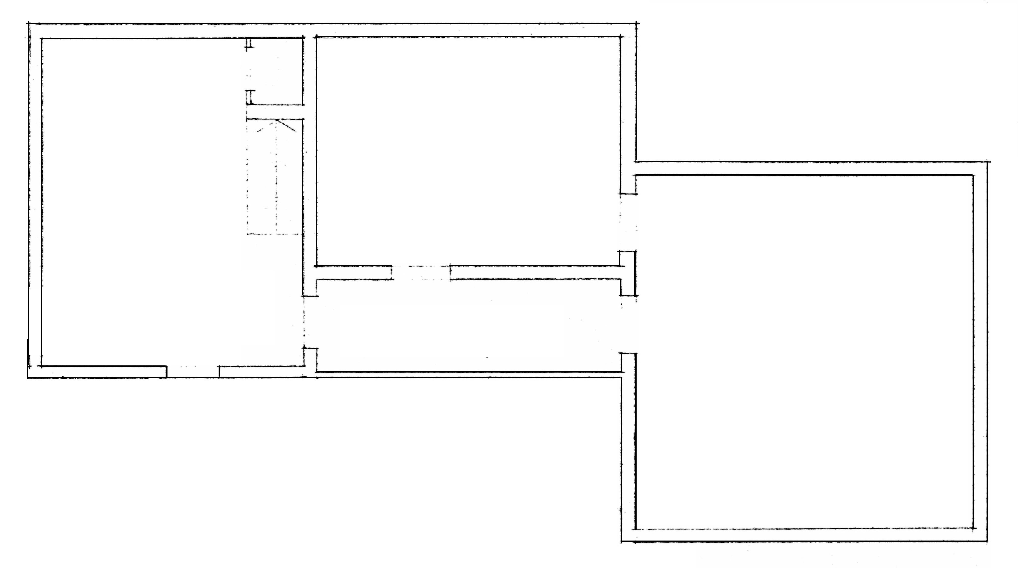
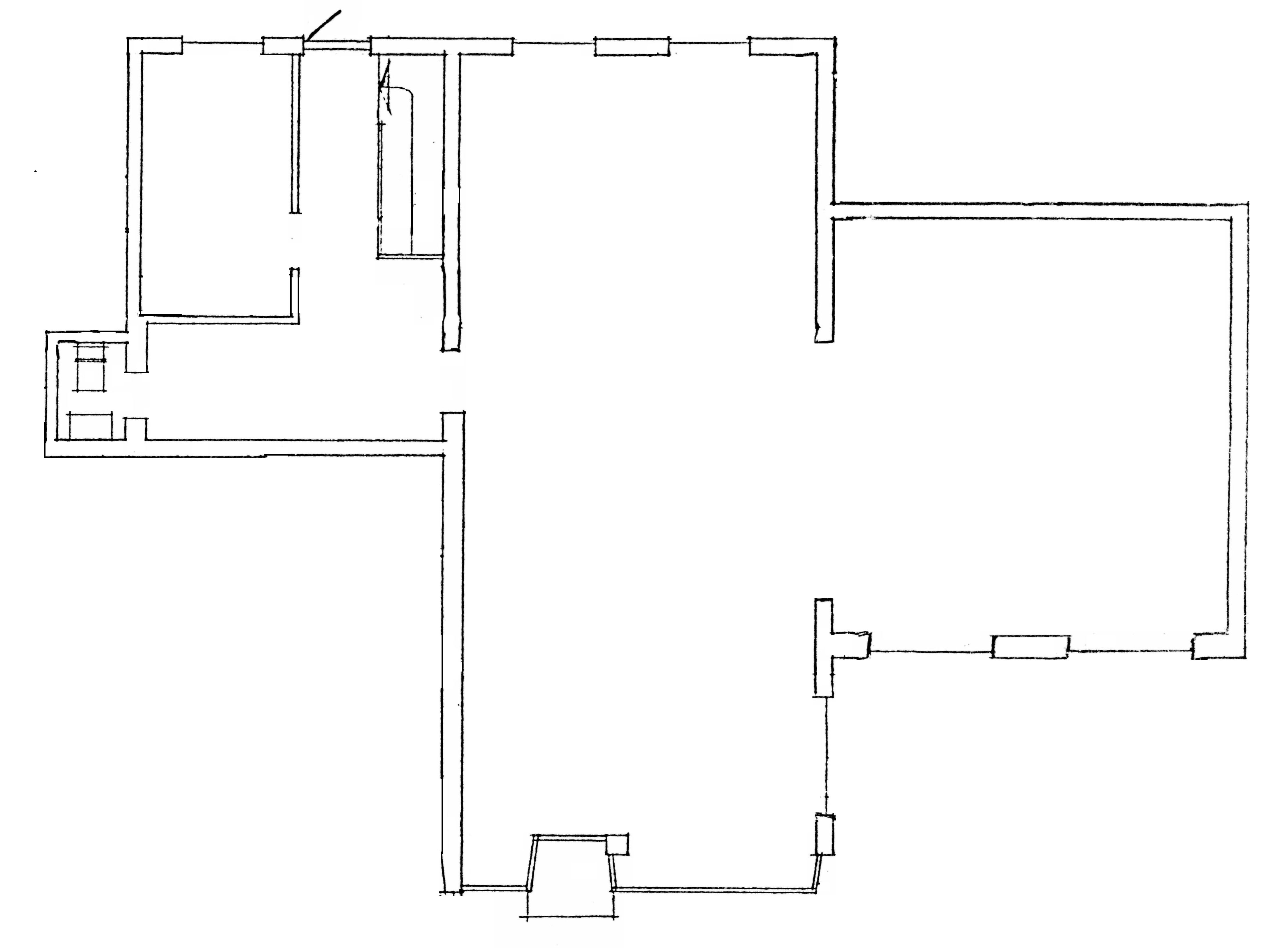
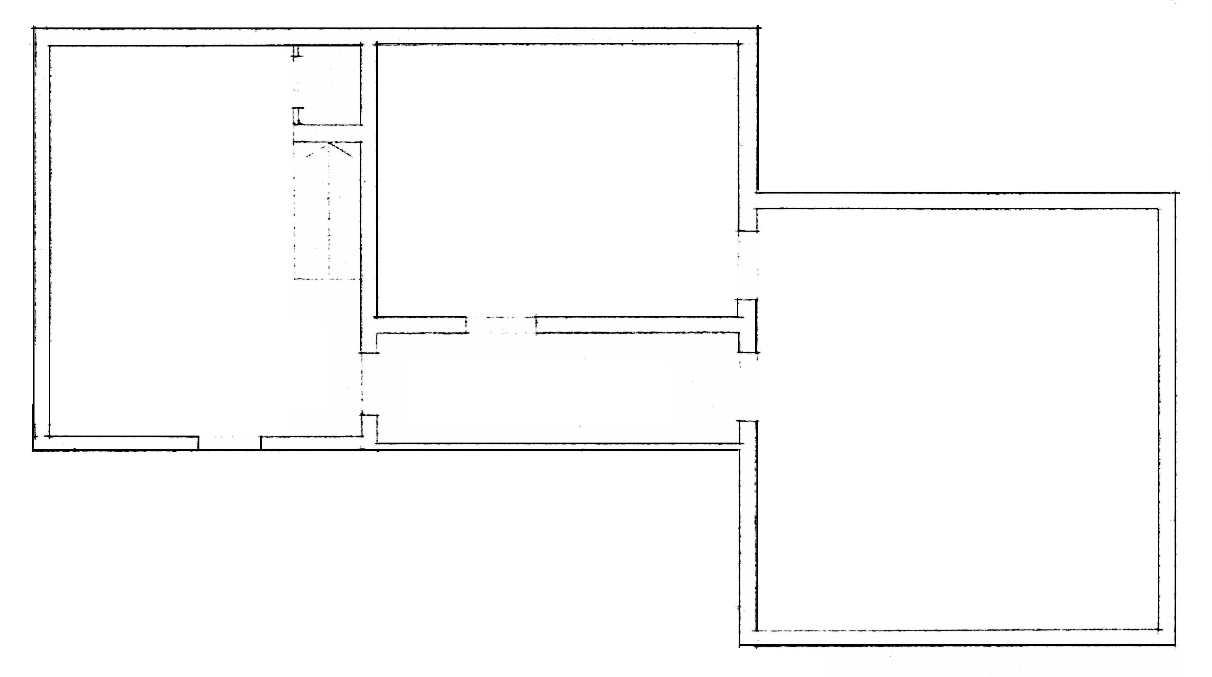
På Storängstorget med Åkersberga centrum som granne ligger denna butikslokal med stora väl synliga skyltfönster mot Storängstorget. Det har tidigare varit mäklarkotor och innan det El och lampbutik. Lokalen går att anpassa till många olika verksamheter. Fatigheten ligger mycket centralt i Åkersberga och det är ca 3 minuterspromenad till Roslagsbanan och granne med Åkersberga Centrum. Lokalen består av 3 plan totalt 246kvm. 128kvm butiksyta i gatuplan och med intern trappa till 1 tr ligger 25kvm kök och personal utrymmen. I källaren på -1 trappa finnas 93kvm som i dag används som lättlager men går att anpassa till personal och konferens ytor.
Ekonomi
Kontraktstyp: Första hand Kontraktslängd: 3 till 5 årigt hyresavtal direkt med fastighetsägaren Uppvärmning: 100 El: Egen abonnemange Moms: 25% Deposition: 3-6 månadshyror bankgaranti eller depositionser
Bekvämligheter
Cykelparkering, Internet: Ja, finns i lokalen, Förråd: I källaren på -1trappa, Parkering: Det finns ett flertal p-garage i närområdet., Garage: I grann fastigher finns garage och 5 minuter till Åkersberga centrums garage, Granne med Åkersberga centrum som är ett fullutrustat centrum med butiker, restauranger, gym, frisörer, flera livsmedelsbutiker, hotell samt all typ av kommunal service. m.m. Det finns ett flertal p-garage i närområdet.
Utförande
Byggår: 1954 Renoveringsår: 1995 Antal våningar: 3 Ventilation: Mekanisk ventilation
Kommunikationer
Buss: 3 minuters promenad till Åkerberga busstorg. Pendeltåg: 3 minuters promenad till Roslagsbanan