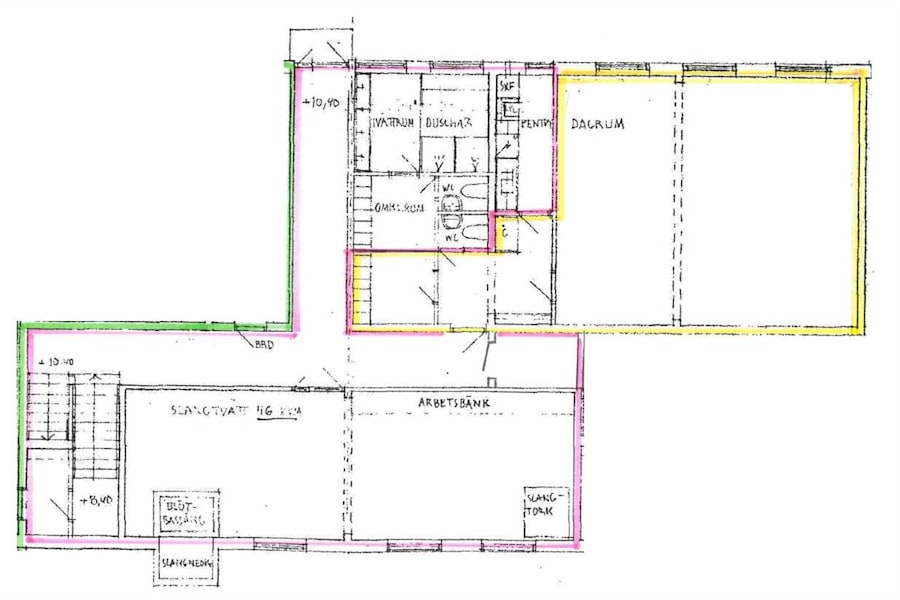
Lokalytan fördelas på en relaxavdelning med omklädningsrum, bastu, 2 duschar och wc om ca 29 m². Här nere finns också ett större rum om ca 46 m² med 3 fönster och en takhöjd om ca 2,43 m som tidigare nyttjats som gym. Detta rum kan användas som kontor eller lager. Lokalen har även ett större rum om ca 80 kvm som kan nyttjas som kontor alternativt samlingsrum samt ett pentry. Det är möjligt att ta upp en entré på husets baksida så att man får en egen ingång till lokalen i markplan så att det går att komma in med rullstol. Det går också att gå in via huvudentrén till Storgatan 36 och gå ner en trappa via trapphuset.
Fastighetsägaren önskar hyra ut alla ytor som en helhet till samma hyresgäst.
Övrig information
Fastighetsägaren har fri prövningsrätt vad gäller val av hyresgäst. Vänligen respektera att all kontakt och visningar skall ske via mäklaren enligt hyresvärdens önskemål. Kontakta lokalförmedlaren Hanna Friman för mer info; maila gärna till hanna@lokaldirekt.se eller messa/ring på mob: 0733-24 35 23.
Ekonomi
Tillträde: omgående eller enligt ök.
Omgivning
Parkeringsmöjligheter/garage: Tre platser utanför går att hyra för 150 kr/månaden + moms. Parkeringsmöjligheter även i lokalen samt på intilliggande gator.