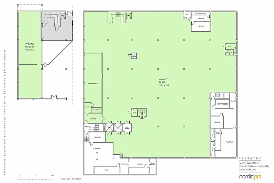
Flexibel och öppen lagerlokal om 1765 kvm med möjlighet att koppla på en butikslokal om ca 186 kvm för en totalyta om ca 1951 kvm.
Lokalen går att nyttja för ett flertal olika ändamål, exempelvis butik, lager, showroom, gym, lekland samt lättare produktion.
Genom butikslokalen i gatuplan kan man skapa en direkt koppling till lokalen på källarplan och därigenom även få en bra skyltyta genom fina glaspartier direkt mot Stortorget.
Lokalerna är tillgängliga för omgående tillträde men kan även iordningsställas och byggas om för att passa en ny verksamhets behov och önskemål.
Omgivning
Optimalt handelsläge mitt på stora torget och med goda parkeringsmöjligheter. Fastigheten har ett optimalt läge i Säffle. Övriga hyresgäster i huset är Apotek, livsmedelsbutik och utbildningslokaler.
Vi har även en butikslokal om 186 kvm på Stortorget i Säffle: Öppen och flexibel butikslokal om 186 kvm med skyltfönster mot Stortorget. Beskrivning: Ljus och öppen butikslokal om 186 kvm med stora skyltfönster mot Stortorget mitt i Säffle. Lokalen är belägen i samma hus som Pekås och Apoteket.
Här finns möjlighet att öppna butik med många olika användningsområden. Lokalen kan även kopplas samman med lager- och kontorsytor i huset.