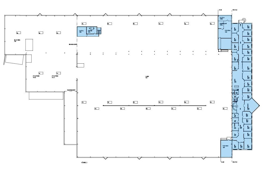
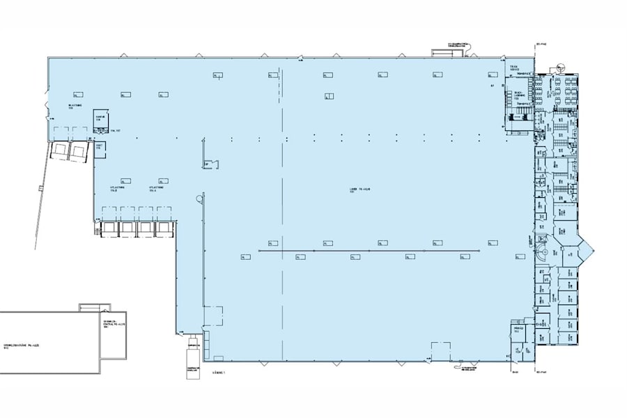
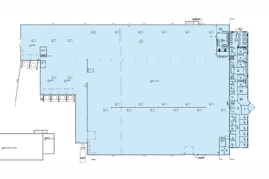
Välkommen till en yteffektiv och flexibel lokal om cirka 7 100 kvm där hyresgästen disponerar en helt egen byggnad med tillhörande tomtyta, perfekt för verksamheter som söker en kombination av effektiva lagerytor och funktionella kontorsytor. Fastigheten erbjuder höglager om 5 950 kvm och kontor om 1 150 kvm, med stora fria ytor, goda lastningsmöjligheter och utmärkta förutsättningar för både logistik, förvaring och produktion.
Den generösa tomten med stora rangerytor och gott om parkering skapar smidiga flöden och enkel hantering av gods. Tack vare fastighetens flexibla utformning och läge passar den lika bra för kreativa bolag som för företag med behov av långsiktig lagring och administration.
Om lokalen:
Total yta: ca 7 100 kvm
Höglager: ca 5 950 kvm med stora öppna ytor
Kontor: ca 1 150 kvm med flexarbetsplatser, konferensrum och lunchmatsal
6 lasthus och 2 markportar
Stora rangerytor och inhägnat område
LED-belysning
Omklädningsrum, pausytor och WC
Strategiskt läge i Pilängen, Örebro
Fastigheten ligger i industriområdet Pilängen, endast cirka 3 km väster om centrala Örebro. Området erbjuder ett optimalt logistiskt läge med direkt närhet till E18 och E20, vilket ger smidig tillgång till både regionala och nationella transportvägar. I närområdet finns flera större lageretableringar, vilket gör Pilängen till en attraktiv plats för logistikintensiva verksamheter.
Busshållplats finns i närheten, vilket gör området lättillgängligt även för medarbetare och besökare.
Ta chansen att etablera er verksamhet i en modern och flexibel lagerfastighet med både höglager och kontor – på en plats som kombinerar funktionalitet, tillgänglighet och tillväxtpotential.
Ytor/Planlösning
Se bland bilder/PDF.
Ekonomi
Kontraktlängd: Förhandlingsbart
Kontrakttyp: Förstahandskontrakt
Tillträde: 2027-01-01.
Utförande
Fastighetsbeteckning: Chauffören 2
Byggår: 1991
Våningsplan: 1 av 1
Takhöjd: 7,5 m
Omgivning
Företag i närheten: Schenker, Svedol, XXL, Ebrex, Lidl och DSV