På återvändsgata med lugnt läge i Danderyd, finner du denna moderna och ljusa kontorslokal, som har ljusinsläpp från tre väderstreck. Även dubbla dusch och omklädningsrum i lokalen.
Anssningsbara ytor om man önskar utöka lokalytan.
Här har ni som hyresgäst närhet till hotell för eventuella besökare. I närhet ligger även restauranger samt kontorshotell som erbjuder konferensmöjligheter.
Mörby Centrum som ligger med gångavstånd, erbjuder också ett stort utbud av service och butiker.
Välkommen på visning
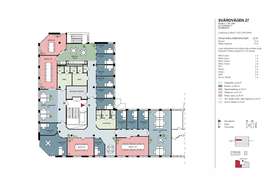
Planlösning: Lokalen erbjuder en modern och effektiv kontorslösning med en mix av öppet landskap, flera mötesrum och tysta arbetsrum kring ett centralt trapphus. Planlösningen skapar en balanserad arbetsmiljö med bra ljusinsläpp, sociala ytor och tydligt separerade arbetszoner.
Omgivning
Omgivning/natur: Inte ska du behöva ta dig över halva stan för att komma till den ultimata arbetsplatsen! Den finns redan här i Danderyd, mitt emellan förskolan och gymmet, trädgårdarnas grönska och Mörby Centrums alla affärer. Här får du och kollegorna tid och ro att tänka (eller springa!) ett extra varv, att mötas, pausa och andas. Så att alla på jobbet kan må bra och får kraft att prestera ert bästa. Och kanske känns det lite extra bra att veta att Danderyd blivit utsedd till kommunen med stans bästa företagsklimat så sent som 2023.
Kom förbi på en kopp kaffe så visar vi dig runt! Chansen är stor att du blir kvar på påtår med någon du känner.
Parkeringsmöjligheter/garage: Garage finns i området samt erbjuder området ett fleratal utomhusplatser för parkering.
Närservice: Ett stenkast bort finner du Mörby Centrum som erbjuder ett flertal restauranger, shopping, systembolaget och apotek. På Karlsrovägen 2 finns SATS Danderyd.
För hyresgäster i området finns låst cykelrum, publik dusch och omklädningsrum.