I denna moderna industrifastighet finns nu en flexibel och effektiv lager- och kontorslokal om totalt 2 676 kvm ledig för uthyrning. Lokalen är uppdelad i 2 412 kvm lageryta och 264 kvm kontor, fördelat på bottenvåning och entresolplan (plan 1).
Lagerdelen har en <strong>takhöjd om cirka 8 meter</strong> och är utrustad med <strong>två lastkajer</strong> samt <strong>en markport</strong>, vilket möjliggör enkel och effektiv hantering av gods. De generösa ytorna och den rationella planlösningen gör lokalen lämplig för flera typer av verksamheter inom logistik, produktion eller e-handel.
Kontorsytorna är moderna och funktionella och rymmer både <strong>öppna arbetsplatser, konferensrum, pentry och WC</strong>. Allt är samlat i direkt anslutning till lagret, vilket skapar ett smidigt och samordnat arbetsflöde.
Byggnaden ligger på ett <strong>inhägnat och välskött område</strong>, med tillgång via grindar och <strong>fri parkering direkt i anslutning till lokalerna</strong>.
Fastigheten är en del av <strong>Stockholm Nord Logistikcenter</strong>, ett väletablerat industriområde med logistik i fokus. Läget är optimalt – endast <strong>30 km norr om centrala Stockholm</strong> och strax söder om <strong>Arlanda flygplats</strong>. Direkt anslutning till <strong>E4:an</strong>, som utgör huvudförbindelsen till och från Stockholm, ger utmärkta kommunikationsmöjligheter för transporter.
I närområdet finns enklare serviceutbud med <strong>lunchrestauranger</strong>, och området har <strong>goda kollektivtrafikförbindelser</strong> med både buss och tåg till Stockholm och omgivande orter.
<strong>Kontakta oss för mer information eller för att boka en visning av lokalen.</strong>
Byggår: 1995
Våningsplan: 1 av 2
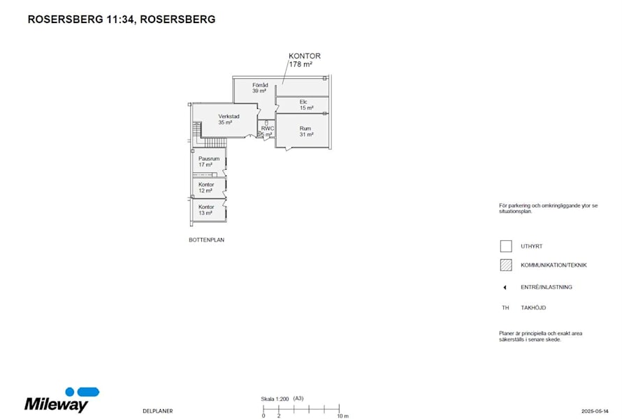
Planlösning: Se planritning bland bilder/PDF.
Omgivning
Företag i närheten: DHL, PostNord, Optimera, Sellpy, Lidl och Stena Recycling AB
Parkeringsmöjligheter/garage: Parkering finns på fastigheten
Närservice: Enklare serviceutbud med lunchrestauranger finns i närområdet