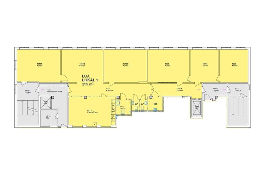
Fantastik kontorslokal på ca 259 kvm med stort ljusinsläpp och utsikt ut mot Ulfsundavägen.
Här får du som hyresgäst chansen att skräddarsy lokalen efter era önskemål och behov för att skapa den perfekta arbetsmiljön för just er verksamhet
Lokalen är belägen i populära Bromma Blocks, som erbjuder allt från restaurang och kaféer till modebutiker och gym. Här finns även tillgång till snabbladdare för elbilar samt biltvätt. Lokalen anpassas inför inflytt vilket ger er som hyresgäst möjlighet att påverka utformningen av kontoret.