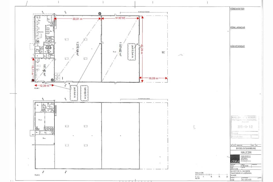
Fastigheten erbjuder en optimal kombination av volym, funktion och flexibilitet med totalt cirka 3 100 kvm – varav omkring 2 500 kvm effektiva lagerytor och cirka 600 kvm moderna kontors- och personalutrymmen i två plan.
Lagret är fördelat på två generösa hallar med en imponerande takhöjd om cirka 6 meter, vilket skapar utmärkta förutsättningar för pallställ, rationell hantering och framtida anpassningar. Den ena delen omfattar cirka 1 030 kvm isolerat kallager, medan den andra om cirka 1 280 kvm är uppvärmd, vilket ger flexibilitet att dela upp verksamheten mellan exempelvis lager, produktion, logistik eller olika affärsområden. De öppna ytorna möjliggör effektiva flöden och kan enkelt skräddarsys efter era behov.
Inlastning sker via två markportar i olika storlekar, strategiskt placerade för att skapa smidiga och tidsbesparande logistikflöden mellan lager och uppställningsytor.
Kontorsdelen är integrerad med lagret och erbjuder en representativ och trivsam arbetsmiljö. På totalt cirka 600 kvm i två plan finns flera kontor och mötesrum, kök/lunchrum, omklädningsrum för både herr och dam, WC samt generösa loungeytor. Här kombineras funktionalitet med komfort – perfekt för företag som vill samla administration och drift under samma tak.
Planlösningen skapar en tydlig men effektiv separation mellan lager och kontor, vilket ger både struktur och närhet i det dagliga arbetet.
En komplett och välbalanserad fastighet för företag som söker yta, flexibilitet och utvecklingsmöjligheter.
Omgivning
Företag i närheten: ITS Logistikpartner, Ahlsell, Volvo, Logent mfl.
Parkeringsmöjligheter/garage: Ba parkeringsmöjligheter på framsidan av fastigheten med målade parkeringsrutor. Parkeringsplatser kan utökas vid behov.