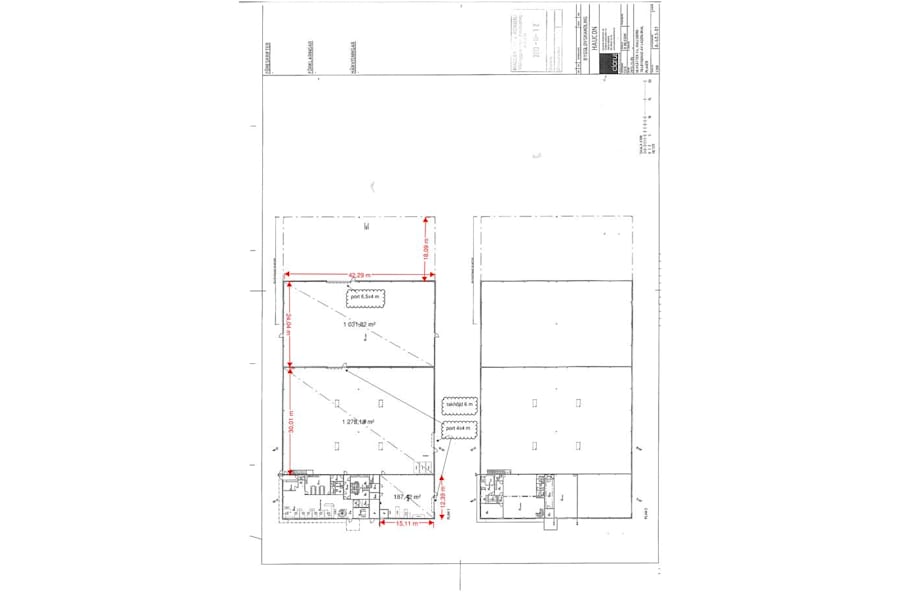
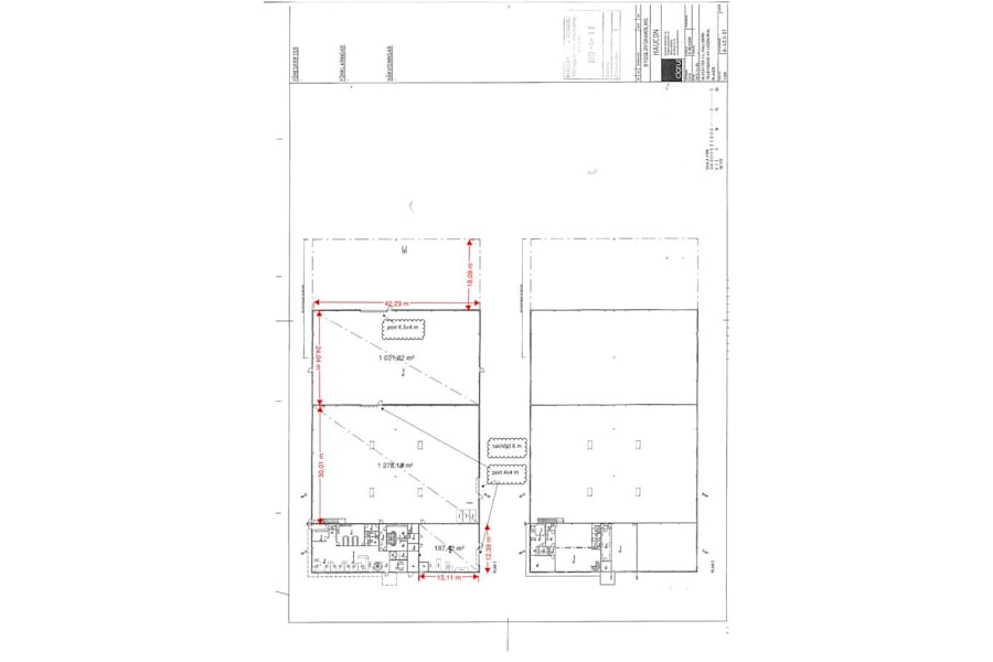
Fastigheten erbjuder en optimal kombination av volym, funktion och flexibilitet med totalt cirka 3 100 kvm – varav omkring 2 500 kvm effektiva lagerytor och cirka 600 kvm moderna kontors- och personalutrymmen i två plan.
Lagret är fördelat på två generösa hallar med en imponerande takhöjd om cirka 6 meter, vilket skapar utmärkta förutsättningar för pallställ, rationell hantering och framtida anpassningar. Den ena delen omfattar cirka 1 030 kvm isolerat kallager, medan den andra om cirka 1 280 kvm är uppvärmd, vilket ger flexibilitet att dela upp verksamheten mellan exempelvis lager, produktion, logistik eller olika affärsområden. De öppna ytorna möjliggör effektiva flöden och kan enkelt skräddarsys efter era behov.
Inlastning sker via två markportar i olika storlekar, strategiskt placerade för att skapa smidiga och tidsbesparande logistikflöden mellan lager och uppställningsytor.
Kontorsdelen är integrerad med lagret och erbjuder en representativ och trivsam arbetsmiljö. På totalt cirka 600 kvm i två plan finns flera kontor och mötesrum, kök/lunchrum, omklädningsrum för både herr och dam, WC samt generösa loungeytor. Här kombineras funktionalitet med komfort – perfekt för företag som vill samla administration och drift under samma tak.
Planlösningen skapar en tydlig men effektiv separation mellan lager och kontor, vilket ger både struktur och närhet i det dagliga arbetet.
En komplett och välbalanserad fastighet för företag som söker yta, flexibilitet och utvecklingsmöjligheter.
Övrig information
SLP är en långsiktig och engagerad fastighetsägare som tar ett aktivt ansvar för både våra fastigheter och våra hyresgäster – alltid med hållbarhet i fokus. Vi tror på nära samarbeten och vill tillsammans med våra kunder utveckla och investera i både fastigheten och er verksamhet. Vår ambition är att skapa en tydlig win–win–win: för oss som fastighetsägare, för er som hyresgäst och för miljön. Genom strategiska investeringar, energieffektiva lösningar och ett affärsmässigt partnerskap skapar vi hållbara fastigheter som stärker er konkurrenskraft över tid.
Miljöcertifiering: BREEAM
Ekonomi
Kontraktlängd: Långtidskontrakt
Kontrakttyp: Förstahandskontrakt
Tillträde: Enligt överenskommelse
Utförande
Fastighetsbeteckning: Ulvsätter 2:10
Takhöjd: 6 m
Omgivning
Parkeringsmöjligheter/garage: Bra parkeringsmöjligheter på framsidan av fastigheten med målade parkeringsrutor. Parkeringsplatser kan utökas vid behov.
Skyltläge: ITS Logistikpartner, Ahlsell, Volvo, Logent mfl.