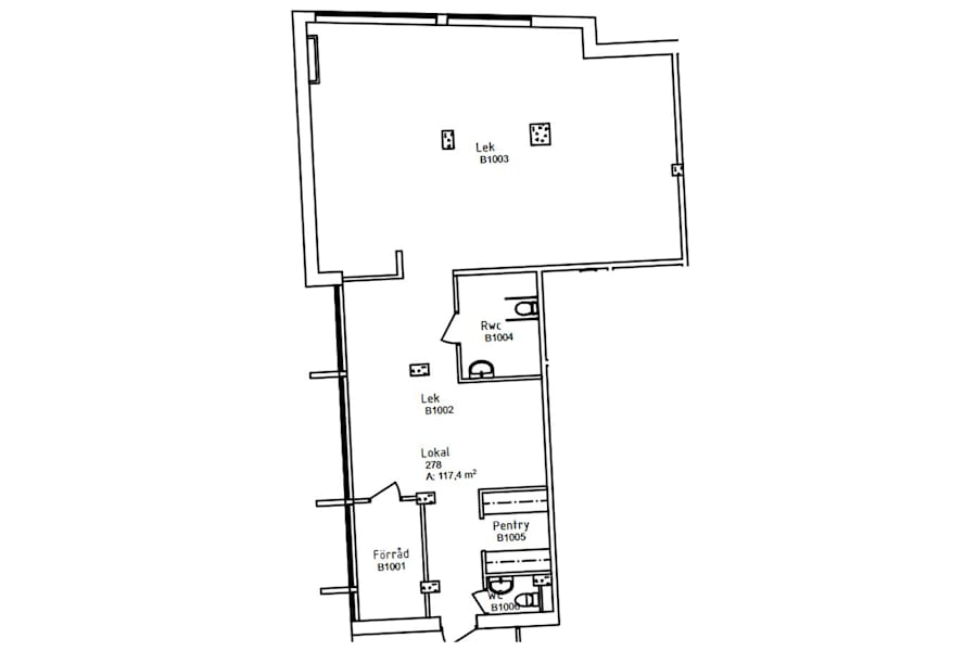
Välkommen till en generös och flexibel lokal om hela 278 kvm på Vårvädersvägen 4K – en perfekt plats för verksamheter som söker både funktionalitet och trivsel.
Lokalen erbjuder en smart planlösning med goda möjligheter att anpassa ytorna efter behov, oavsett om det gäller kontor, mottagning eller annan verksamhet. Här finns ett praktiskt pentry som underlättar vardagen för både personal och besökare, samt en handikappanpassad WC (RWC) som säkerställer tillgänglighet för alla.
De rymliga ytorna skapar en luftig och inbjudande känsla med gott om plats för arbetsplatser, mötesrum eller öppna sociala ytor. Läget på Vårvädersvägen ger dessutom god tillgänglighet och en smidig vardag.
En lokal med stor potential, redo att formas efter just din verksamhets behov.
Kontakta oss idag för mer information eller för att boka en visning!
Övrig information
Balouten är ett lokalt företag som specialiserat sig på att matcha fastighetsägare med hyresgäster i hela Skåne. Vi erbjuder lokalförmedling, rådgivning samt uthyrning och förmedling av kommersiella fastigheter. Vårt huvudfokus är att hjälpa fastighetsägare att hitta rätt hyresgäst för sina lokaler och att säkerställa att hyresgästerna känner sig trygga och väl omhändertagna under hela uthyrningsprocessen.
Ekonomi
Kontraktlängd: Förhandlingsbart
Kontrakttyp: Förstahandskontrakt
Tillträde: Enligt överenskommelse
Omgivning
Vägbeskrivning: Lund tätort, Skåne län, Lunds kommun