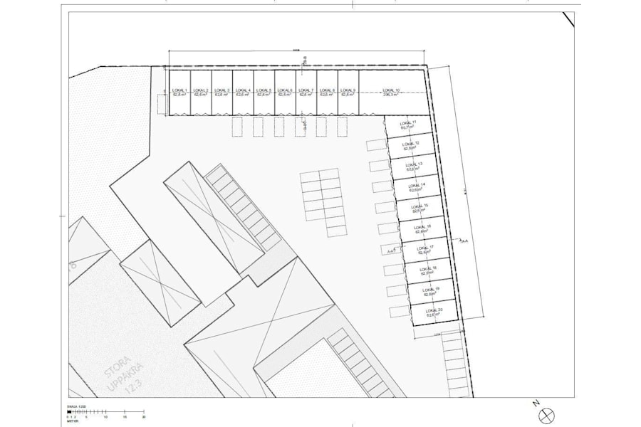
På Väståkravägen 16 erbjuds möjligheten att bygga upp en lokal helt anpassad för er verksamhet. Ytor mellan 60 kvm till 1126 kvm finns tillgängliga för små som stora hyresgäster. Lokalerna är enkla att slå ihop och anpassa för er verksamhet. Varje lokal har stora lagerportar och möjlighet till parkering utanför.
Hjärup är väl placerat mellan Malmö och Lund och som granne hittar ni STC, Coop, Apoteket, Padelanläggning och HMC.
Övrig information
Croisette Real Estate Partner har erhållit förmedlingsuppdrag avseende lokalen som beskrivs i detta informationshäfte. Informationen är till största del inhämtad från Fastighetsägaren och eller Hyresgästen. Croisette AB och dess dotterbolag (”Croisette”) ansvarar inte för riktigheten i informationen. All information som är av relevans skall kontrolleras av en eventuell hyresgäst och varken Fastighetsägaren, Hyresgästen eller Croisette kan hållas ansvarig vid felaktigheter i detta informationshäfte.
E22: an samt kollektiv trafik.
Ekonomi
Tillträde: Efter överenskommelse
Utförande
Byggår: 2025
Omgivning
Omgivning/natur: Vackert och grönt. Nära till parker och promenadstråk.
Parkeringsmöjligheter/garage: Det finns bra möjlighet för parkering på gården för anställda, besökare och kunder.