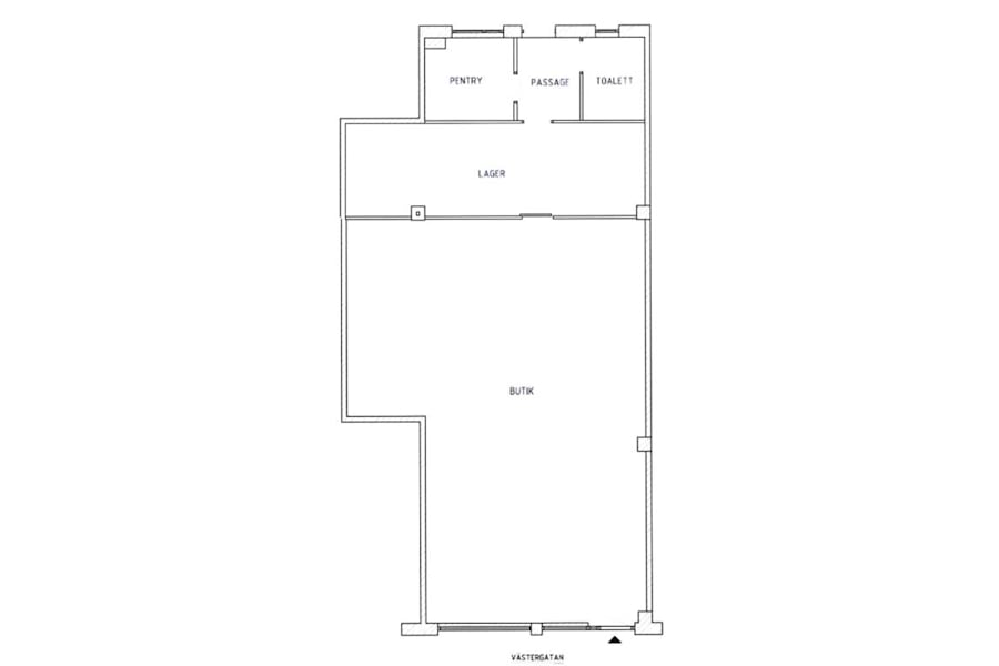
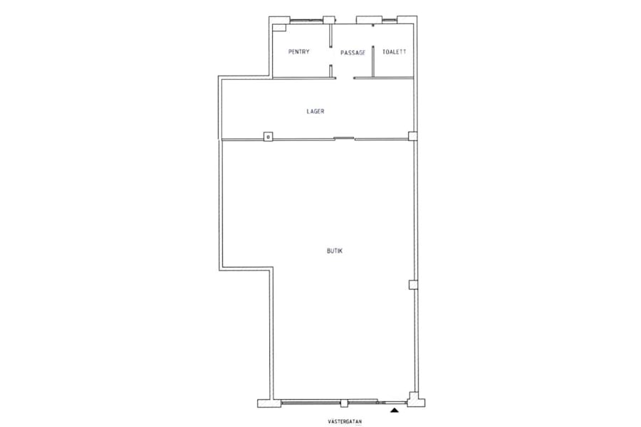
Nu finns möjlighet att hyra en kontorslokal om 128 kvm med centralt läge på Västergatan 5 i Eslöv. Lokalen är belägen i markplan och erbjuder en praktisk och funktionell planlösning med flera rum, vilket passar för såväl traditionellt kontorsarbete som mottagning eller annan verksamhet.
Lokalen är i gott skick och kan enkelt anpassas utifrån behov. Tack vare de fönster mot gatan får lokalen ett fint ljusinsläpp och synlighet utifrån.
En lagom stor kontorslokal i ett lugnt men centralt läge i Eslöv. Välkommen att kontakta oss för visning eller mer information.
Övrig information
Croisette Real Estate Partner har erhållit förmedlingsuppdrag avseende lokalen som beskrivs i detta informationshäfte. Informationen är till största del inhämtad från Fastighetsägaren och eller Hyresgästen. Croisette AB och dess dotterbolag (”Croisette”) ansvarar inte för riktigheten i informationen. All information som är av relevans skall kontrolleras av en eventuell hyresgäst och varken Fastighetsägaren, Hyresgästen eller Croisette kan hållas ansvarig vid felaktigheter i detta informationshäfte.
Omgivning
Omgivning/natur: Västergatan är en lugn sidogata med närhet till Eslövs stadskärna. I närområdet finns både butiker, service, restauranger och andra verksamheter. Eslövs station ligger på kort gångavstånd
Företag i närheten: Handelsbanken Eslöv, Life, Svensk Fastighetsförmedling, Studio Aktiv 24, Dressman, Espresso House med flera.