Nu finns möjlighet att hyra en fräsch och välplanerad lagerlokal med kontor i ett strategiskt logistikläge i Halmstad.
Lokalens fördelar:
Området: Industriområdet Larsfrid ligger endast 3 kilometer söder om centrala Halmstad och utgör ett optimalt logistikläge i direkt anslutning till E6/E20, nära Halmstad hamn samt vid knutpunkten för riksväg 15, 25 och 26. Högskoleområdet erbjuder ett brett serviceutbud av butiker och restauranger. Det finns goda kollektivtrafikförbindelser med buss till centrala Halmstad.
En flexibel lokal med utmärkt tillgänglighet för lager, logistik eller produktion. Kontakta oss för mer information eller en visning!
Ytor/Planlösning
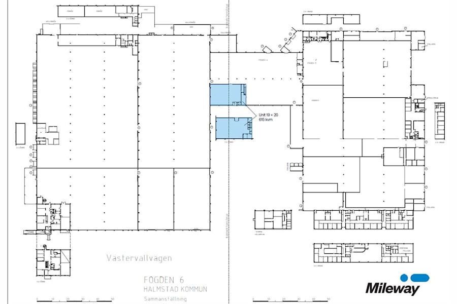
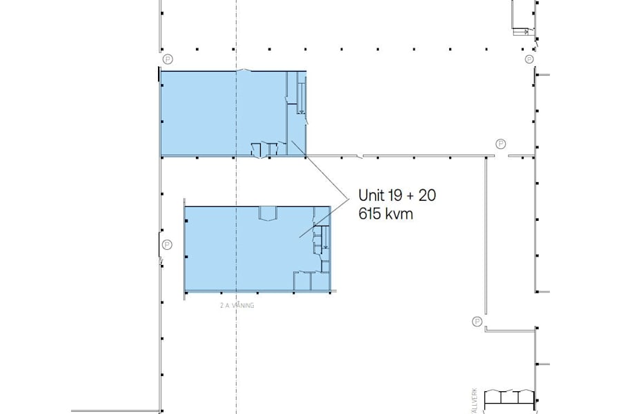
Se bilder.
Ekonomi
Kontraktlängd: Förhandlingsbart
Kontrakttyp: Förstahandskontrakt
Tillträde: Enligt överenskommelse.
Utförande
Fastighetsbeteckning: Fogden 6
Byggår: 1979
Renoveringsår: 2020
Omgivning
Företag i närheten: Lidl, Snabbgross, Derome, Biltema Logistics AB och Access Logistics
Parkeringsmöjligheter/garage: Fri parkering
Skyltläge: Bra exponering av skyltläge
Vägbeskrivning: Direkt anslutning till E6/E20 och riksväg 15/25/26