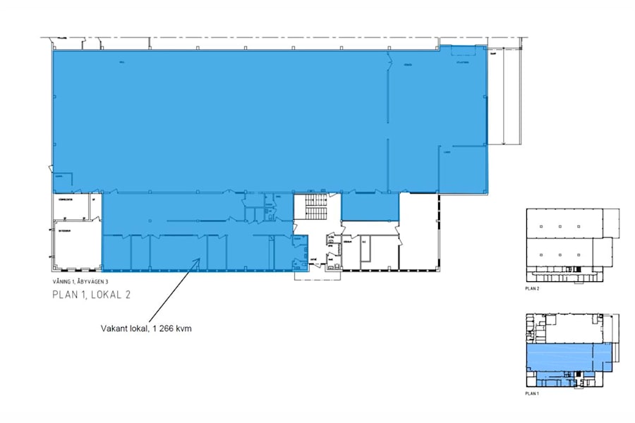
Nu finns möjlighet att hyra en välplanerad lagerlokal om totalt 1 266 kvm, belägen i attraktiva Bista industriområde – ett av Örebros mest populära logistiklägen. Här kombineras tillgänglighet, funktion och smidiga kommunikationer på bästa sätt.
Lager och hantering
Lokalen erbjuder ett rymligt lager med en takhöjd om 7 meter, idagsläget finns ett nedpedlat akustiktak som kan tas bort vid behov. Ytan är utrustad med LED-belysning för energieffektiv drift och har tillgång till en egen lastkaj för smidig in- och utlastning.
Kontor och personalytor
I anslutning till lagret finns mindre kontorsytor samt praktiska personalutrymmen såsom kök, omklädningsrum och WC.
Fastigheten erbjuder kostnadsfria parkeringsplatser med plats för cirka 50 bilar.
Läge – Bista Industriområde
Bista industriområde ligger ca tre kilometer sydväst om Örebros centrum och erbjuder ett optimalt logistikläge nära både E18 och E20. Här finns goda kollektivtrafikförbindelser med buss samt cykel- och gångvägar.
Området erbjuder en blandning av lager- och logistikfastigheter, kontor och butiker.
Byggår: 1975
Våningsplan: 1 av 2
Omgivning
Omgivning/natur: Pilängen Industriområde 3 km från centrala Örebro. Naturskönt närområde intill Svartån och Åbyparken.
Parkeringsmöjligheter/garage: 50 parkeringsplatser
Närservice: Lunchrestauranger och dagligvarubutiker finns i närområdet.