Nu har ni chansen att hyra ett eget hus i det livfulla och inspirerande Dalénum - en plats där design, kreativitet och arkitektur möts. Här sitter ni med utsikt över en park och glittrande vatten, granne med designvarumärket Klong och Beckmans designhögskola.
Huset bjuder på en mycket generös takhöjd, stora vackra fönster och ett fantastiskt ljusinsläpp. Det finns också möjlighet att skapa en trevlig uteplats. En miljö som inbjuder till nya idéer, samarbeten och kreativt skapande - perfekt för er som söker något mer än bara ett kontor.
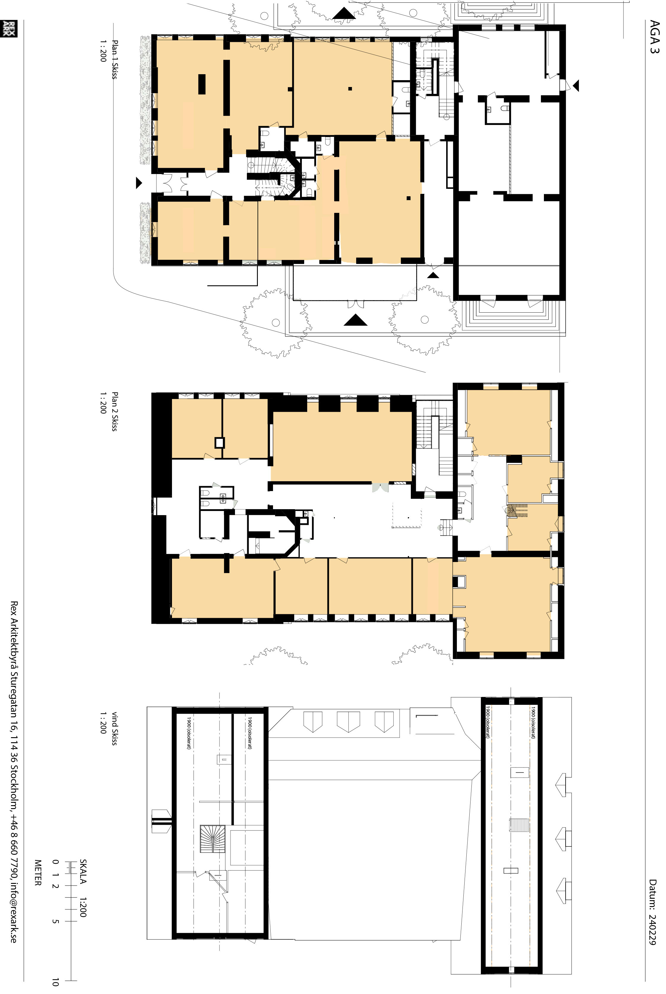
Ledig yta uppgår till ca 775 kvm fördelat på två plan, möjlighet finns att dela upp huset om ni söker mindre yta (från ca 160 kvm). Hör av er så berättar vi mer och kan skicka en ritning efter era behov
Ekonomi
Kontraktstyp: Första hand Kontraktslängd: 3 år eller längre Uppvärmning: 87
Bekvämligheter
Cykelparkering, Garage: Finns i grannfastighet, Parkering: runt om huset, Inom Dalénum finns flera restauranger, caféer, gym och mataffärer. I området finns det väletablerade varumärken som arbetar i fastigheterna runtom, populära 450 gradi runt hörnet och Beckmans designskola.
Kommunikationer finns såsom Lidingöbanan, bussar och färja. Utanför fastigheten finns det parkering i direkt anslutning till lokalerna samt garage alldeles i närheten.
Utförande
Byggår: 1912 Antal våningar: 2 Våningsplan: 2
Kommunikationer
Väg: 10 minuter med bil in till stan Buss: buss 206 eller 238 Tunnelbana: Ropsten, anslutning med bussar eller Lidingöbanan Spårvagn: 100 m till AGA station - Lidingöbanan Färja: Pendelbåt några minuter ner till kajen, tar ca 55 min till Nybrokajen