Ta chansen att etablera er verksamhet på en av Malmös äldsta gator. Denna gata är troligtvis äldre än Malmö då den fungerade som landsväg redan på 1250-talet.
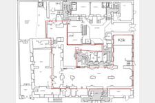
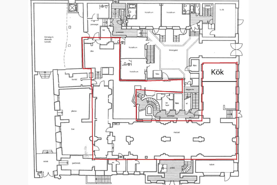
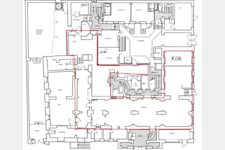
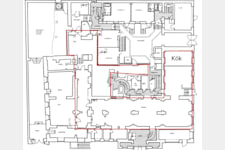
Lokalen är anpassad för restaurangverksamhet och finns i källaren byggd 1307, ansedd att vara en av Malmös äldsta byggnader. Restaurangen är en del av Mayfair Hotel vilket genererar ett stort antal kunder.
Lokalen har ett öppet kök i lokalen för enklare tillagning men även bakutrymme för back office samt möjlighet för ett större kök.
Men gångavstånd till Malmö Centralstation samt närhet till gågata och Lilla Torg ligger lokalen på ett otroligt läge.
Verksamheten behöver ha fullständiga serveringsrättigheter, samt fungera tillsammans med hotellets frukostservering för att vara aktuell för denna lokal.
Övrig information
Croisette Real Estate Partner har erhållit förmedlingsuppdrag avseende lokalen som beskrivs i detta informationshäfte. Informationen är till största del inhämtad från Fastighetsägaren och eller Hyresgästen. Croisette AB och dess dotterbolag (”Croisette”) ansvarar inte för riktigheten i informationen. All information som är av relevans skall kontrolleras av en eventuell hyresgäst och varken Fastighetsägaren, Hyresgästen eller Croisette kan hållas ansvarig vid felaktigheter i detta informationshäfte.
Ekonomi
Tillträde: Efter överenskommelse
Omgivning
Omgivning/natur: Malmös hjärta med välbevarade hus.
Företag i närheten: Mayfair Hotel, Nybergs Konditori, Espresso House, Sefina Panktbank
Parkeringsmöjligheter/garage: Finns i närområdet. P-hus inom gångavstånd.