På Hjulmansgatan 3 finner ni dessa kontorsytor belägna mitt i stan, precis intill Lilla Torg, i Malmö.
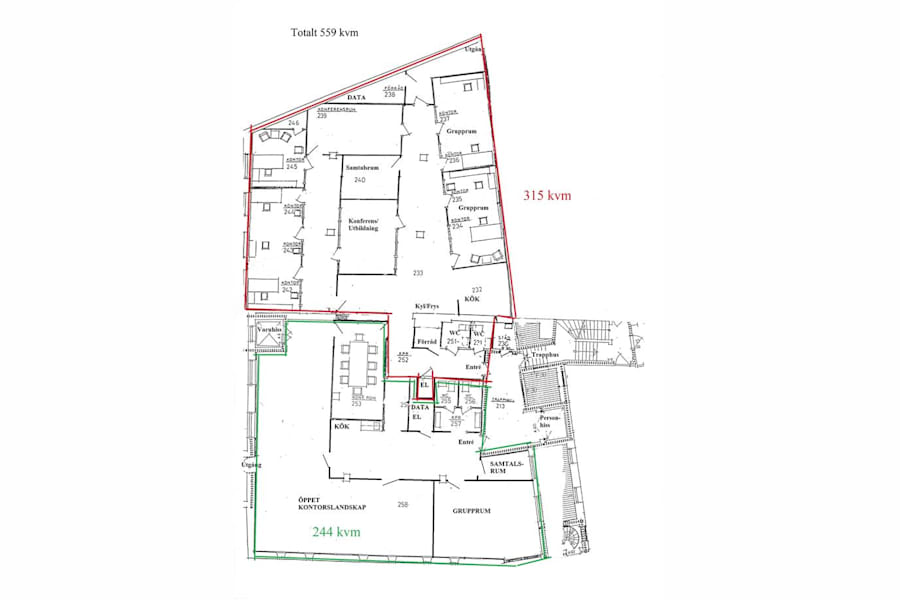
Lokalerna har en väldigt bra hyresnivå trots dess fördelaktiga läge. Det råder moderna och ljusa ytor med både öppet kontorslandskap och enskilda kontorsrum. Ni får även tillgång till stort pentry med yta för att umgås och flera toaletter.
Här får ni ett oslagbart läge med stadskärnan precis utanför dörren. I närområdet finns det ett stort serviceutbud med flera restauranger på och intill Lilla Torg samt gångstråk med shopping precis runt hörnet.
Övrig information
Croisette Real Estate Partner har erhållit förmedlingsuppdrag avseende lokalen som beskrivs i detta informationshäfte. Informationen är till största del inhämtad från Fastighetsägaren och eller Hyresgästen. Croisette AB och dess dotterbolag (”Croisette”) ansvarar inte för riktigheten i informationen. All information som är av relevans skall kontrolleras av en eventuell hyresgäst och varken Fastighetsägaren, Hyresgästen eller Croisette kan hållas ansvarig vid felaktigheter i detta informationshäfte.
Ekonomi
Tillträde: Enligt överenskommelse
Omgivning
Företag i närheten: Form/Design Center, Åhlens, Mac Cosmetics, Ljud Ateljén.
Parkeringsmöjligheter/garage: Det finns garageplatser att hyra i fastigheten.