Nu finns möjlighet att hyra en attraktiv butikslokal i bra läget på Allégatan, mitt emot Hotell Scandic Plaza och med Högskolan samt citykärnan på bekvämt gångavstånd.
Lokalen erbjuder stora, välvda fönster som ger generöst ljusinsläpp och utmärkt exponering mot gatan – perfekt för verksamheter som vill synas.
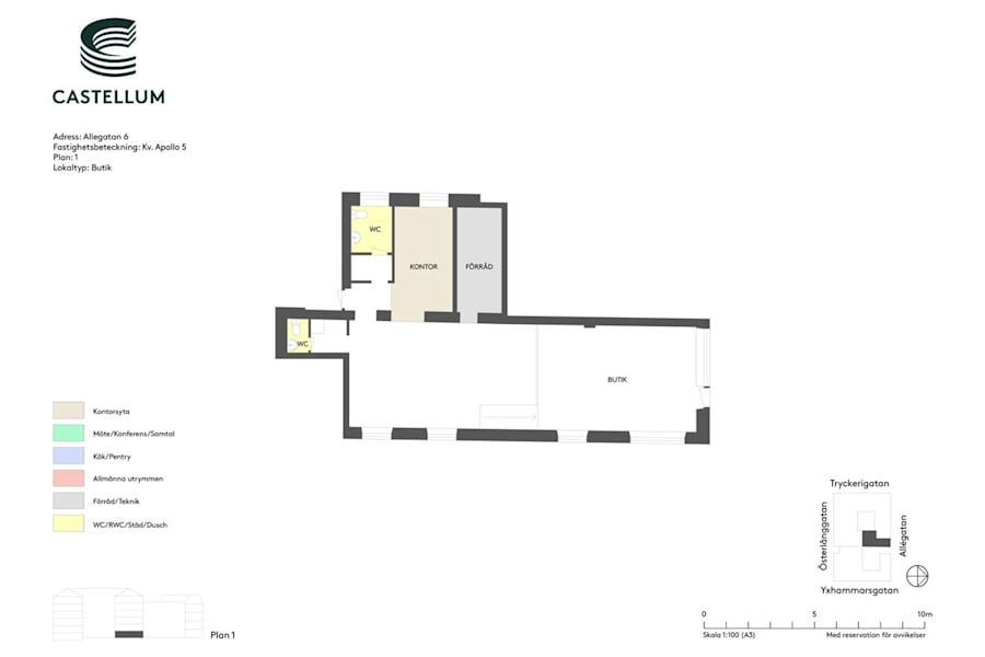
Lokalen har en inbjudande karaktär och lämpar sig väl för butik, showroom eller liknande koncept.
Ett unikt tillfälle för dig som söker en lokal med både charm och strategiskt läge.
Lokalen kan anpassas efter behov. I samband med lokalanpassning eller ombyggnad är vår ambition att använda återbrukat material så långt det är möjligt och vi prioriterar hållbarhet för minsta möjliga miljöpåverkan. Genom att välja klimatsmarta lösningar kan vi tillsammans göra en stor skillnad.
Välkommen att kontakta oss för mer info och visning!
Omgivning
Omgivning/natur: Fastigheten ligger i centralt läge i Borås med en kort promenad till Borås vackra Stadspark och Viskan som rinner genom centrum. Närhet till all service så som buitker, servicebutiker, restauranger, banker, apotek m m.
Till Stadsparken tar du dig för en kort break i citypulsen eller varför inte njuta av en medhavd lunch, kaffe eller passa på att kika in till lunchrestaurangen som ligger direkt när du kommer in i parken.
Alldeles i närheten finner vi även Sandwalls plats med dess uteserveringar, caféer och restauranger som är en perfekt och mycket populär mötesplats både för affärslunchen och träff i goda vänners sällskap.
Inte sällan är det full fart här lunchtid och om det är soligt och fint väder - ja, då gäller det att vara ute i god tid för att få plats på uteserveringarna!
Närservice: Hos oss har varje hyresgäst ett eget team!
Med ett starkt lokalt engagemang är vi måna om att leva upp till de förväntningar som ställs på en trygg och långsiktig hyresvärd, varje dag, i stort och smått.
Alla våra fastigheter sköts av vår egen personal och som hyresgäst har du tillgång till ett eget Castellumteam som ser till att du trivs hos oss.
Och om dina behov så småningom förändras kan vi, tack vare vår storlek, nästan alltid erbjuda en lösning. För att göra det enkelt för våra hyresgäster att leva hållbart erbjuder vi bland annat gröna hyresavtal och förnybar el.