Butikslokal med mycket ljusinsläpp via stora skyltfönster ut mot trevliga Lilla Brogatan och Sandvallsplats på armlängdsavstånd.
Lokalen bjuder på en öppen yta och anslutning till mysigt innertorg i "Torghuset". Här har man skyltfönster mot innertorget i Torghuset samt ut mot Lilla Brogatan, stora möjligheter att presentera sin verksamhet. Smidig access från gatan.
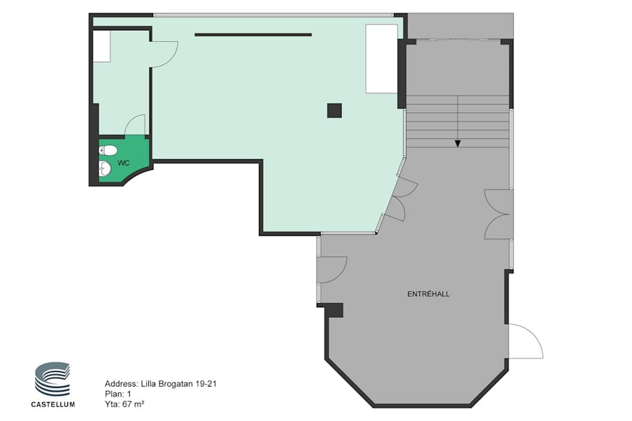
Det finns personalavdelning med wc samt pausrum med pentry.
Skapa en butik där kunder och personal kommer att trivas och känner sig välkomna till.
Den perfekta lokalen för dig som vill driva en verksamhet med ett centralt läge mitt i Borås hjärta!
Välkommen att kontakta oss för mer info och visning!
Omgivning
Omgivning/natur: Ett stenkast bort från denna centralt belägna fastighet finner du Borås vackra Stadspark, delvis omgiven av Viskan vilken rinner genom centrum.
Till Stadsparken tar du dig för en kort break i citypulsen eller varför inte njuta av en medhavd lunch, kaffe eller passa på att kika in till lunchrestaurangen som ligger direkt när du kommer in i parken.
Alldeles i närheten finner vi även Sandwalls plats med dess uteserveringar, caféer och restauranger som är en perfekt och mycket populär mötesplats både för affärslunchen och träff i goda vänners sällskap.
Inte sällan är det full fart här lunchtid och om det är soligt och fint väder - ja, då gäller det att vara ute i god tid för att få plats på uteserveringarna!
Parkeringsmöjligheter/garage: Besöksparkering finns t ex på Midas-terrassen och i Midas-garaget som är utrustade parkeringsplatser med laddstationer för elbilar.
Närservice: Hos oss har varje hyresgäst ett eget team!
Med ett starkt lokalt engagemang är vi måna om att leva upp till de förväntningar som ställs på en trygg och långsiktig hyresvärd, varje dag, i stort och smått.
Alla våra fastigheter sköts av vår egen personal och som hyresgäst har du tillgång till ett eget Castellumteam som ser till att du trivs hos oss.
Och om dina behov så småningom förändras kan vi, tack vare vår storlek, nästan alltid erbjuda en lösning. För att göra det enkelt för våra hyresgäster att leva hållbart erbjuder vi bland annat gröna hyresavtal och förnybar el.