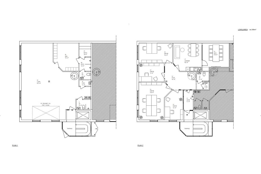
Här erbjuds en trevlig och funktionell kombilokal om 240 kvm i två plan, 88 kvm lager och 152 kvm kontor. Lokalen präglas av ljusa och fräscha ytor samt en effektiv och flexibel planlösning.
Ytan är fördelad på flera kontorsrum, konferensrum samt kök/lunchrum. Därtill finns väl tilltagna personalutrymmen med omklädning, dusch, bastu samt två toaletter, vilket skapar god komfort för verksamheten.
Välkommen till oss på Croisette för ytterligare information och bokning av visning!
Övrig information
Croisette Real Estate Partner har erhållit förmedlingsuppdrag avseende lokalen som beskrivs i detta informationshäfte. Informationen är till största del inhämtad från Fastighetsägaren och eller Hyresgästen. Croisette AB och dess dotterbolag (”Croisette”) ansvarar inte för riktigheten i informationen. All information som är av relevans skall kontrolleras av en eventuell hyresgäst och varken Fastighetsägaren, Hyresgästen eller Croisette kan hållas ansvarig vid felaktigheter i detta informationshäfte.
Ekonomi
Tillträde: Enligt överenskommelse
Hyresinformation: Kontakta annonsören
Omgivning
Omgivning/natur: Högsbo-Sisjön industriområde ligger cirka 7 kilometer söder om centrala Göteborg och är ett av norra Europas mest expansiva områden inom handel och industri. Området avgränsas med Högsbo i norr och med Sisjön i söder. Genom området går Söderleden, som är en motorled från E6 till Hisingen och centrala Göteborg. Brett serviceutbud i närområdet med restauranger, butiker, köpcentrum 421 samt Sisjöns handelsplats. Det finns goda kollektivtrafikförbindelser med buss till Göteborg med omnejd.
Företag i närheten: PulPac AB, Kungsängen, QSR, Askims Bleck & Plåt AB, Västsvenska Flyttbyrån AB, m.fl..
Parkeringsmöjligheter/garage: Parkering finns framför fastigheten