Här finns det möjlighet att hyra denna trivsamma kontorslokal om 194 kvm i eftertraktade Högsbo.
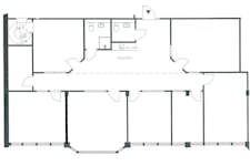
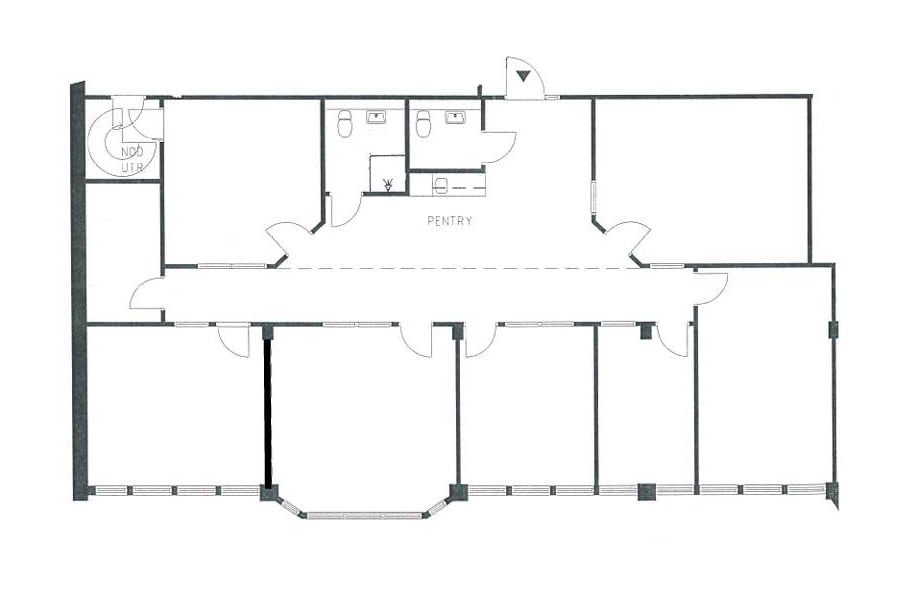
Lokalen har en blandad planlösning med fem kontorsrum i olika storlekar, två konferensrum, WC med dusch, pentry med tillhörande pausyta och ett förråd.
Lokalen har gott om fönster som bidrar till ett bra ljusinsläpp.
Lokalen ligger en trappa upp i byggnaden, som även har hiss för enkel åtkomst.
Utmärkta parkeringsmöjligheter på fastigheten, inklusive 14 platser med elbilsladdare. Dessutom finns det möjlighet att hyra garageplats. Det finns även cykelparkering både i garaget och utanför byggnaden.
Välkommen till oss på Croisette för ytterligare information och bokning av visning!
Ytor/Planlösning
Blandad planlösning.
Övrig information
Croisette Real Estate Partner har erhållit förmedlingsuppdrag avseende lokalen som beskrivs i detta informationshäfte. Informationen är till största del inhämtad från Fastighetsägaren och eller Hyresgästen. Croisette AB och dess dotterbolag (”Croisette”) ansvarar inte för riktigheten i informationen. All information som är av relevans skall kontrolleras av en eventuell hyresgäst och varken Fastighetsägaren, Hyresgästen eller Croisette kan hållas ansvarig vid felaktigheter i detta informationshäfte.
Ekonomi
Tillträde: 2025-06-01
Omgivning
Omgivning/natur: Högsbo är centralt beläget i Göteborg med närhet till såväl Söderleden som Dag Hammarskjöldsleden.
Företag i närheten: Högsbo Däck AB, Restauranggrossisten AB, Kopparbergs Bryggeri, Jernbergs Bil & Maskin AB
Parkeringsmöjligheter/garage: Utmärkta parkeringsmöjligheter på fastigheten, inklusive 14 platser med elbilsladdare. Dessutom finns det möjlighet att hyra garageplats. Det finns även cykelparkering både i garaget och utanför byggnaden.