Fantastisk lokal med två våningar i Kortedala!
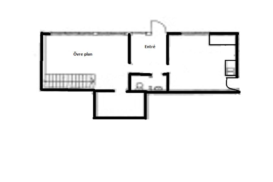
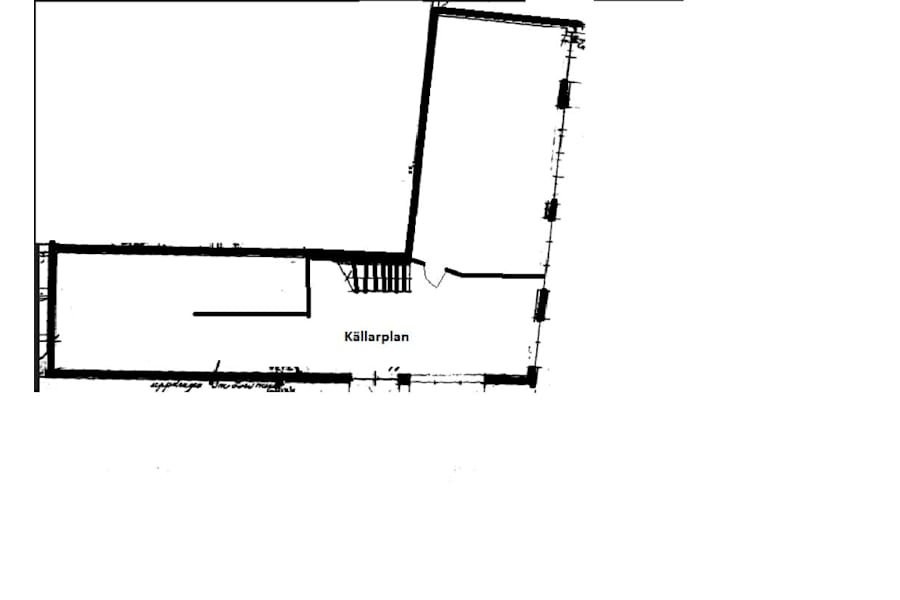
Utmärkt lokal i två plan för cykelverkstad, kontor, showroom eller konstnärsateljé. Här kan du skapa en unik och mångsidig verksamhet som passar dina behov.
Lokalen är utrustad med stora ytor och möjlighet till pentry och wc.
Lokalen ligger på Aprilgatan 30 i Kortedala, en lugn och trevlig stadsdel i Göteborg. Här finns allt du behöver för att driva en framgångsrik verksamhet, inklusive närhet till butiker, restauranger och andra företag.
Grundhyran ligger på 800 kr/kvm år exkl moms.
Tillträde enligt överenskommelse.
Välkommen att höra av dig för visning!
Om du vill ha mer information om denna lokal eller andra liknande lokaler, besök vår hemsida.
Fastigheten
Fastigheten är ett flerfamiljshus byggt 1956 och har en lugn miljö med hus om 3-4 våningar. Kvarteren är centrerade kring allmänna torg och har öppna, gröna gårdar mellan husen.
Omgivning och service
I närheten ligger Årstidstorget där det finns frukt och godisbutik, servicebutik, pizzeria, vårdcentral, barnavårdscentral, BVC. På Citytorget hittar du närmaste mataffär, ICA Nära. Här finns även en charkuteributik, bageri och kvartersrestaurang. Vid Kortedala Torg finns matbutik, gym, godisaffär och några restauranger.
Vid Kortedala Torg finns matbutik, gym, godisaffär och några restauranger.
Kommunikationer
Närmsta hållplats för kollektivtrafik är Janurigatan, där spårvagn 7 och 11 går. Det är täta avgångar och linje 7 och 11 tar snabbspåret och har bra anslutningar för att ta dig runt hela Göteborg. I området finns tillståndsparkering, vilket betyder att du inte har en fast plats, utan får stå på alla parkeringen som tillhör området. Cykel- och gångvägar är väl utbyggda in mot stan och runt omkring i området