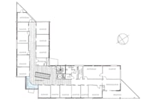
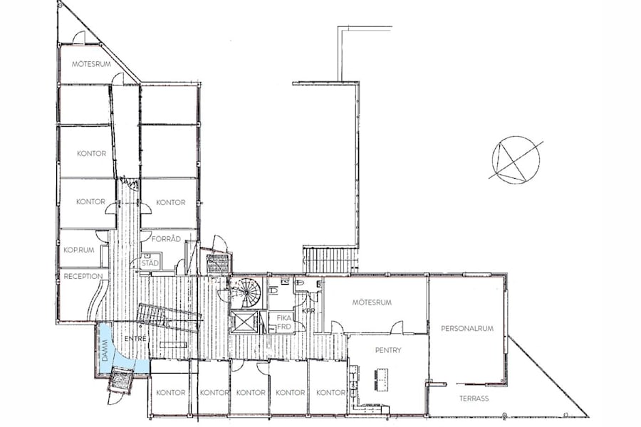
Här finns det nu möjlighet att hyra denna fantastiska kontorsbyggnad om 1370 kvm i Borås - perfekt för dig som söker allt i ett! Hit kommer du genom en fin entré och välkomnas av en trevlig reception.
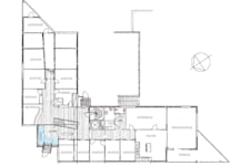
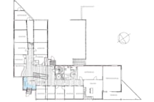
Byggnaden är fördelad på tre våningsplan med rumsindelad planlösning, bestående av kontor/arbetsrum i olika storlekar samt ett antal konferensrum. Här finns även rymliga personalutrymmen med direkt anslutning till kök/pentry och dessutom tillgång till både terrass och balkong där lunch- och fikaraster kan avnjutas. Huset är modernt inredd med härliga fönsterpartier som skapar en trivsam arbetsmiljö.
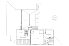
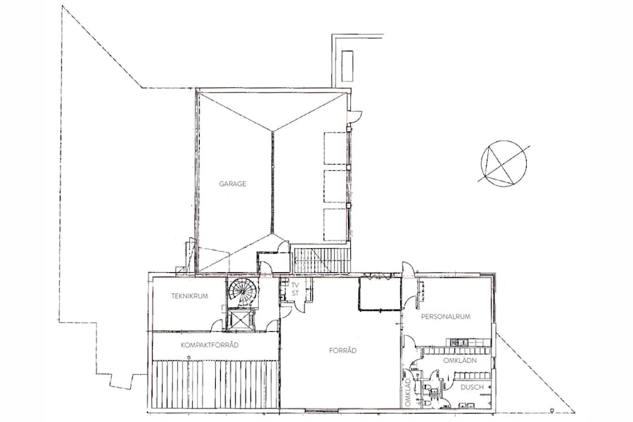
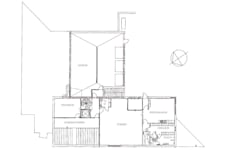
Källarplanet består av öppna kontorsytor, kök/pentry, ett garage om ca 160 kvm, omklädningsrum med dusch och WC, teknikrum och förrådsutrymme.
Planlösningen kan anpassas för nästa hyresgäst.
Det finns 13 parkeringsplatser på fastigheten.
Hiss finns.
Välkommen till oss på Croisette för ytterligare information och bokning av visning!
Ytor/Planlösning
Rumsindelad planlösning.
Övrig information
Croisette Real Estate Partner har erhållit förmedlingsuppdrag avseende lokalen som beskrivs i detta informationshäfte. Informationen är till största del inhämtad från Fastighetsägaren och eller Hyresgästen. Croisette AB och dess dotterbolag (”Croisette”) ansvarar inte för riktigheten i informationen. All information som är av relevans skall kontrolleras av en eventuell hyresgäst och varken Fastighetsägaren, Hyresgästen eller Croisette kan hållas ansvarig vid felaktigheter i detta informationshäfte.
Ekonomi
Tillträde: Enligt överenskommelse
Utförande
Byggår: 2006
Renoveringsår: 2018
Omgivning
Omgivning/natur: Här sitter du med närhet till Annelundsparken.
Företag i närheten: Lyreco Sverige AB, Ryds Glas AB, Serneke, Mekonomen, Bilpunkten Borås AB, STORA COOP, STC, m.fl...
Parkeringsmöjligheter/garage: Det finns gott om parkerinsplatser utanför byggnaden.