Här finns det möjlighet att hyra denna yteffektiva lagerlokal om 466 kvm med egen ingång från gatan med ett grymt skyltläge på fasad mot vägen.
Lokalen har en öppen planlösning med ett rum för personal och är utrustad med lastbrygga samt ramp.
Det finns gott om parkerinsplatser utanför byggnaden.
Lokalen kan nyttjas som både butik eller lager/industri och har tidigare använts som butik samt bilverkstad.
Välkommen till oss på Croisette för ytterligare information och bokning av visning!
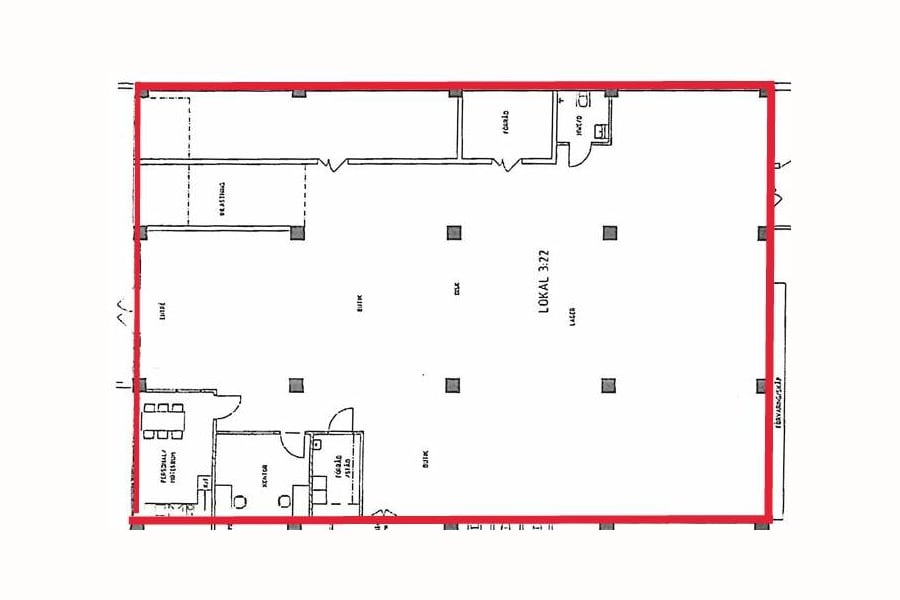
Ytor/Planlösning
Öppen planlösning.
Övrig information
Croisette Real Estate Partner har erhållit förmedlingsuppdrag avseende lokalen som beskrivs i detta informationshäfte. Informationen är till största del inhämtad från Fastighetsägaren och eller Hyresgästen. Croisette AB och dess dotterbolag (”Croisette”) ansvarar inte för riktigheten i informationen. All information som är av relevans skall kontrolleras av en eventuell hyresgäst och varken Fastighetsägaren, Hyresgästen eller Croisette kan hållas ansvarig vid felaktigheter i detta informationshäfte.
Ekonomi
Tillträde: Enligt överenskommelse
Omgivning
Omgivning/natur: Här sitter du med närhet till Annelundsparken.
Företag i närheten: Borås Markisservice AB, Friskis&Svettis, Kungälvs Rörläggeri AB, City Bilvård S AB, STC, Eskils Tryckeri AB, Ryds Glas AB, m.fl...
Parkeringsmöjligheter/garage: Det finns gott om parkerinsplatser utanför byggnaden.