Här finns det möjlighet att hyra en rymlig och flexibel lokal med ett av områdets mest synliga om 600 kvm totalt, som kan delas upp i mindre ytor!
Lokalen har god takhöjd och fönster längs båda fasaderna vilket ger ett öppet intryck och bra möjligheter för skyltning. Det finns även möjlighet att sätta upp en takskylt med god synlighet mot R40.
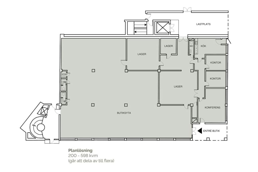
Ytan uppgår till 600 kvm och kan anpassas efter era behov och önskemål. Idag består den av en större öppen yta som använts som butik, ett lagerutrymme samt rum som fungerar för kontor, möten eller liknande. Planlösningen kan delas upp i mindre enheter och separata entréer kan ordnas vid behov.
Utanför entrén finns korttidsparkering och ytterligare parkeringsplatser finns på andra sidan gatan.
Välkommen till oss på Croisette för ytterligare information och bokning av visning!
Ytor/Planlösning
Flexibel planlösning.
Övrig information
Croisette Real Estate Partner har erhållit förmedlingsuppdrag avseende lokalen som beskrivs i detta informationshäfte. Informationen är till största del inhämtad från Fastighetsägaren och eller Hyresgästen. Croisette AB och dess dotterbolag (”Croisette”) ansvarar inte för riktigheten i informationen. All information som är av relevans skall kontrolleras av en eventuell hyresgäst och varken Fastighetsägaren, Hyresgästen eller Croisette kan hållas ansvarig vid felaktigheter i detta informationshäfte.
Ekonomi
Tillträde: Enligt överenskommelse
Omgivning
Omgivning/natur: Du sitter med närhet till Viskan, grönområde och härliga shoppingstråk!
Företag i närheten: Nordic Wellness, Danske Bank Borås, Istanbul Grill, Ateljé Margareta, Tandläkare Åsa Gadler, Viskan Trafikskola AB, m.fl...
Parkeringsmöjligheter/garage: Utöver de närliggande parkeringarna på gatan finns det även möjlighet att hyra parkeringsplatser i husets garage. Därifrån når du direkt trapphusen som leder upp till lokalen!
Skyltläge: Utmärkt skyltläge genom stora skylfönster!