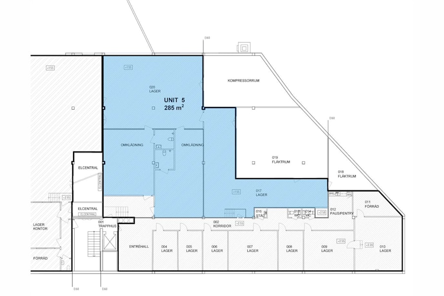
Kontor- och lagerfastighet med ledig lagerlokal om 285 kvm på bottenplan. Lagret består av två delar med egen ingång på baksidan av byggnaden. Rymliga omklädningsrum med skåp samt WC finns tillgängligt. Här finns möjlighet till att anpassa lokalen efter behov. Fastigheten är delvis inhägnad och har öppna rangerytor samt parkeringsmöjligheter med fri parkering.
Östra Hamnen är ett utbrett och väletablerat industriområde på centralt läge vid stadens norra infartsleder, endast 3 kilometer norr om centrala Malmö. Här finns goda transportförbindelser via Västkustvägen vidare till Inre Ringvägen, E6/E20 och E22. Området präglas av lättindustri samt lager- och logistikverksamheter och det erbjuds ett enklare serviceutbud av handel och lunchrestauranger. Det finns goda kollektivtrafikförbindelser med buss till centrala Malmö.
Byggår: 1963
Planlösning: Se planritning bland bilder.
Omgivning
Företag i närheten: Cargobike of Sweden, INR Försäljning Sverige AB, Bluebox.se, Exakta Print AB och Bring
Parkeringsmöjligheter/garage: Fri parkering
Närservice: Enklare serviceutbud av handel och lunchrestauranger i närområdet