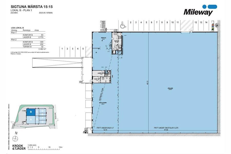
Nu finns möjligheten att hyra en <strong>modern och rymlig lagerlokal om 3 462 kvm</strong> i en helt ny logistikfastighet i Arlandastad. Lokalen är utformad för att möta de högsta kraven på <strong>effektivitet, tillgänglighet och volymkapacitet</strong>, och erbjuder därmed optimala förutsättningar för verksamheter inom logistik, lager och distribution.
<strong>Om lokalen</strong>
Lokalen har en generös takhöjd på 9,3 meter, vilket möjliggör effektiv hyllförvaring och hantering av större gods. Den är utrustad med hela fem lasthus samt en markport, vilket ger flexibla och effektiva lastningslösningar för både större och mindre transporter. Lokalen kan även anpassas efter specifika behov avseende kontor, entresol eller övrig inredning.
<strong>Fakta om lokalen:</strong>
<strong>Yta:</strong> 3 462 kvm
<strong>Takhöjd:</strong> 9,3 meter till balk
<strong>Lastning:</strong> 5 lasthus + 1 markport
<strong>Golvbärighet:</strong> 5 ton/kvm
<strong>Energieffektivt:</strong> LED-belysning och sprinklersystem
<strong>Anpassningsbar:</strong> Möjlighet till kontor, entresol och personalutrymmen
<strong>BREEAM-certifiering:</strong> Byggnaden certifieras som <em>Very Good</em>
<strong>Är ni intresserade av en lokal i en annan storlek? Se flera lediga lokaler i samma byggnad <a href="https://objektvision.se/Beskriv/238022573?ShowInactive=True" target="_blank"><em><u>Bristagatan 19</u></em></a>
</strong>
<strong>Läget – Arlandastad</strong>
Med ett oslagbart läge intill E4:an och endast några minuter från Arlanda flygplats, erbjuder Arlandastad fantastiska logistikmöjligheter. Området är fullt utbyggt med restauranger, hotell, handel och god kollektivtrafik. Perfekt för företag med behov av regional, nationell eller internationell distribution.
<strong>Därför ska du välja denna lokal:</strong>
Nyproduktion med hög standard och hållbarhetsprofil
Effektiv lastning via flera lasthus och markport
Flexibla anpassningsmöjligheter för lagring och kontor
Strategiskt läge för snabb och säker distribution
<strong>Välkommen att kontakta oss för mer information eller för att boka en visning!</strong>
Byggår: 2024
Planlösning: Se ritningar bland bilder/ladda ner PDF.
Omgivning
Företag i närheten: Bring, DB Schenker, Byggmax, Plantagen och Veddesta Distribution
Parkeringsmöjligheter/garage: Gott om parkeringsplatser på fastigheten
Närservice: Stort serviceutbud med butiker och restauranger kring Arlandastad