Lokal om 747 kvm med öppen planlösning och två portar som passar life science/tech såväl som verkstad/lager/produktion.
Här byggs nya, moderna lokaler med förutsättningar för verksamheter inom bland annat Life science och Tech. Här finns även restaurang samt planeras också för nya grönområden, restauranger och gym. Området ligger i direkt anslutning till en större handelsplats med många butiker och IKEA.
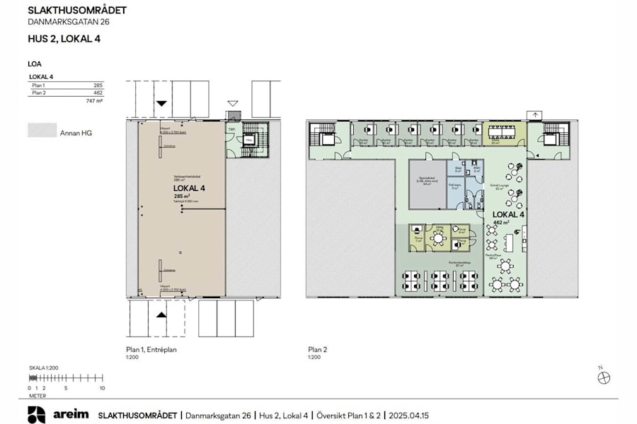
Planlösning: I Hus 2 i nya Slakthusområdet (se situationsplan) finns nyproducerad lokal om 747 kvm med öppen planlösning där vi kan anpassa utformningen efter era behov.
Omgivning
Omgivning/natur: Hela området omgärdas av cykelvägar och en cykelverkstad kommer att öppnas för våra hyresgäster och flertalet laddstationer för bilar kommer att installeras.
Företag i närheten: Området ligger i direkt anslutning till en större handelsplats med många butiker och IKEA.
Parkeringsmöjligheter/garage: Området har gott om parkeringsplatser och flertalet laddstationer för bilar kommer att installeras.
Närservice: Här planeras också för nya grönområden, restauranger och gym.
Skyltläge: Mycket gott skyltläge längs med Verkstadsgatan.