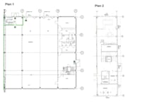
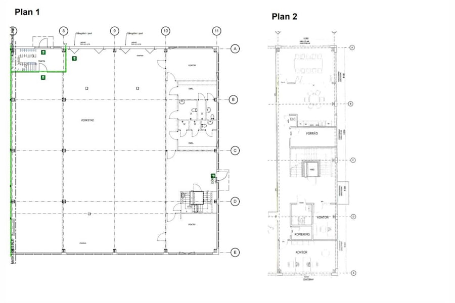
Yteffektiv verksamhetslokal, plan 1 om 540 kvm lager/verkstad med två portar i markplan, 7m takhöjd. Plan 2 fina ytskikt om 144 kvm med kontor/personalytor.
Planlösning: Yteffektiv verksamhetslokal, plan 1 om 540 kvm lager/verkstad med två portar i markplan, 7m takhöjd. Plan 2 fina ytskikt om 144 kvm med kontor/personalytor.
Omgivning
Omgivning/natur: I området finns gott om parkeringsplatser, grönområden och möjligheter att sitta utomhus när vädret tillåter. Solceller och ett litet vindkraftverk bidrar till elförsörjningen i området.
Parkeringsmöjligheter/garage: Parkering finns i direkt anslutning till lokalen och det finns även laddstationer för elbilar i området.